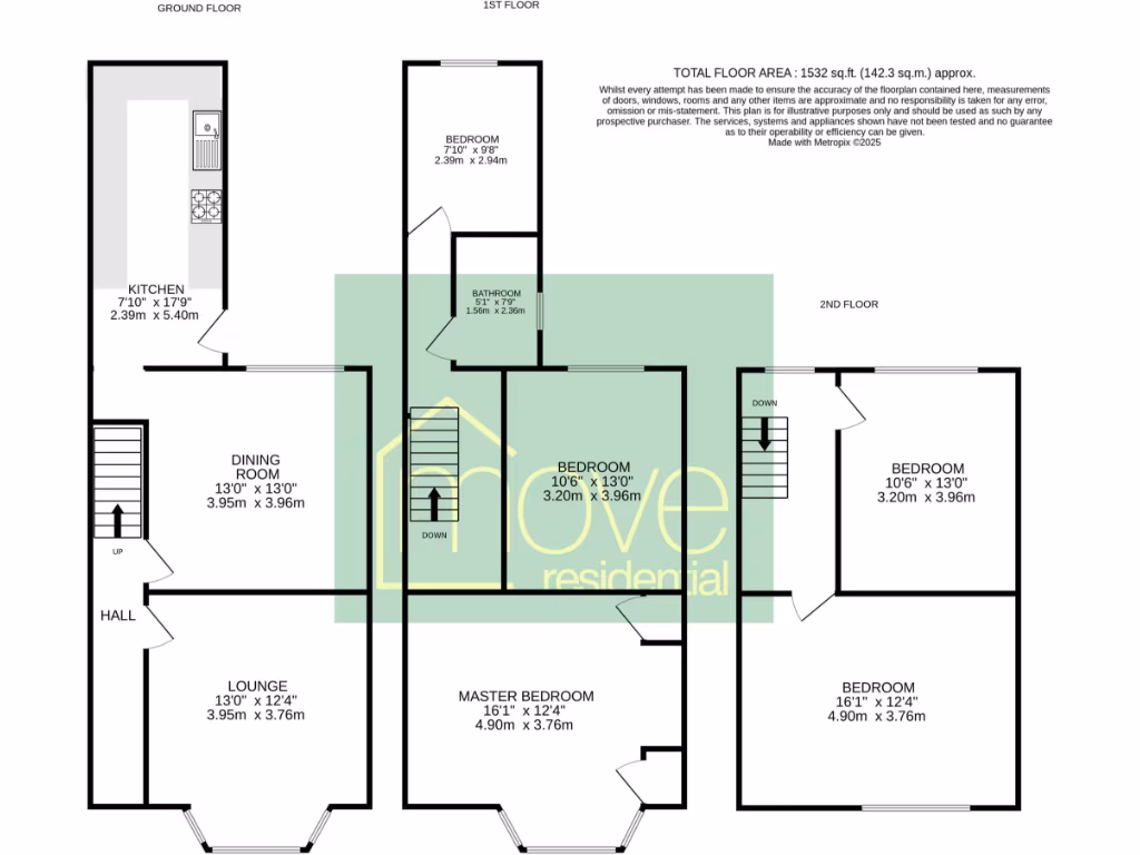
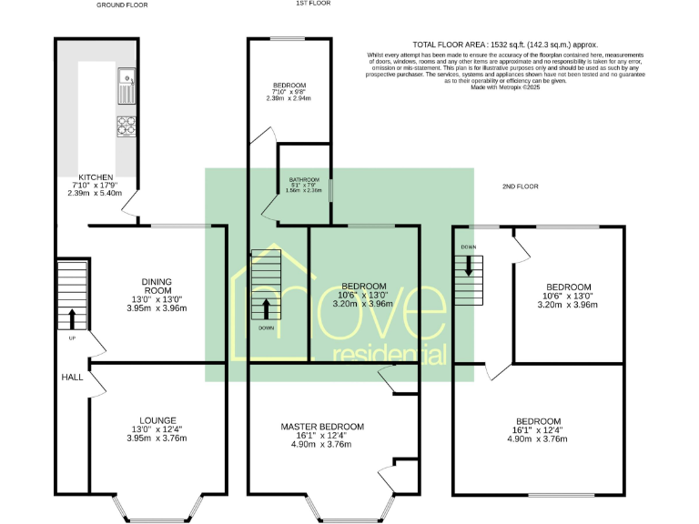
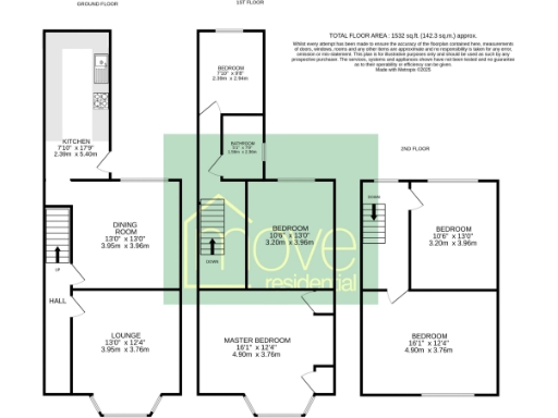
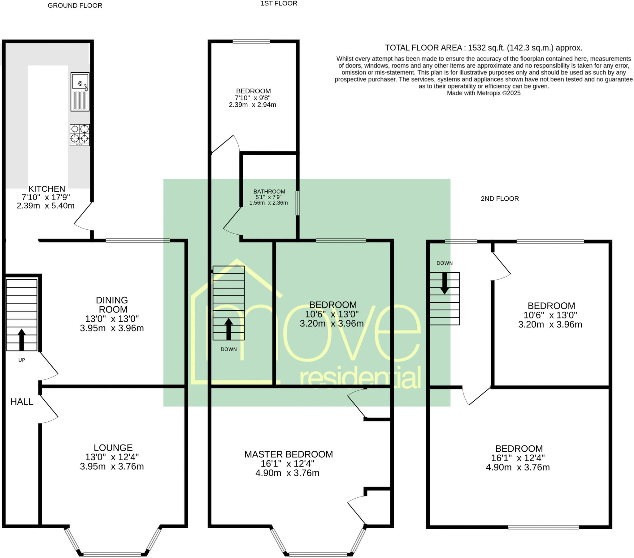
Near promenade with flexible three-floor living and garden.
Over 1,500 sq ft across three floors, five bedrooms
Set across three floors and extending to around 1,500 sq ft, this substantial Victorian mid-terrace offers genuine family space close to the promenade and local amenities. The ground floor provides a bay-fronted lounge, separate dining room and a rear kitchen, with five bedrooms across the upper floors to suit growing families or home-working needs.
Practical features include double glazing, solid brick walls with internal insulation and a mains gas boiler with radiators; the home has been well maintained but shows areas that would benefit from cosmetic updating. There is a small front garden set back from the road and a low-maintenance enclosed rear yard with gated access.
Important considerations: the house has a single family bathroom and a compact outdoor plot; the immediate area is very deprived with above-average crime levels. For buyers willing to modernise, the layout, size and energy performance present clear scope to improve value and create a comfortable long-term family home.
4 bedroom terraced house for sale in Rake Lane, Wallasey, Wirral, CH45 — £300,000 • 4 bed • 1 bath • 2198 ft²
4 bedroom semi-detached house for sale in Turret Road, Wallasey, Wirral, CH45 — £250,000 • 4 bed • 1 bath • 1271 ft²
5 bedroom terraced house for sale in Castleway South, Leasowe, Wirral, CH46 — £220,000 • 5 bed • 1 bath • 1544 ft²
5 bedroom terraced house for sale in Egerton Street, New Brighton, Wirral, CH45 — £200,000 • 5 bed • 2 bath • 1566 ft²
4 bedroom semi-detached house for sale in Turret Road, Wallasey, Wirral, CH45 — £240,000 • 4 bed • 1 bath • 1369 ft²
4 bedroom terraced house for sale in Leasowe Road, Wallasey, CH45 — £260,000 • 4 bed • 1 bath • 1175 ft²






















































































