**Standout Features:**
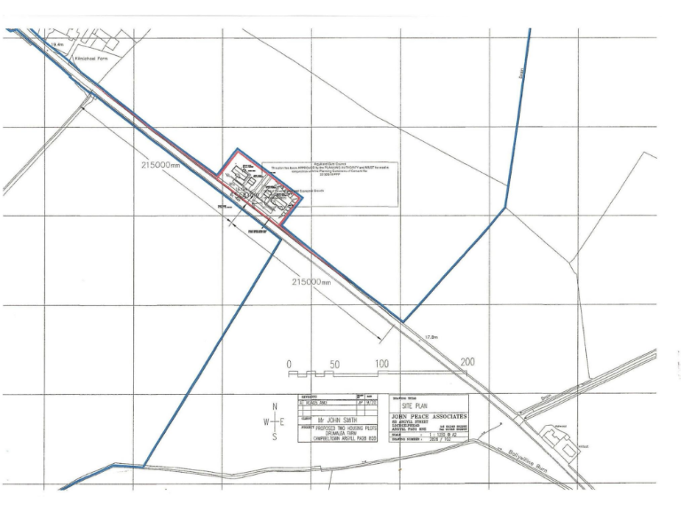
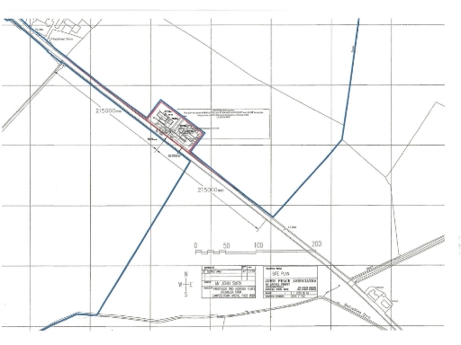
- Expansive building plot of approximately 0.4 acres.
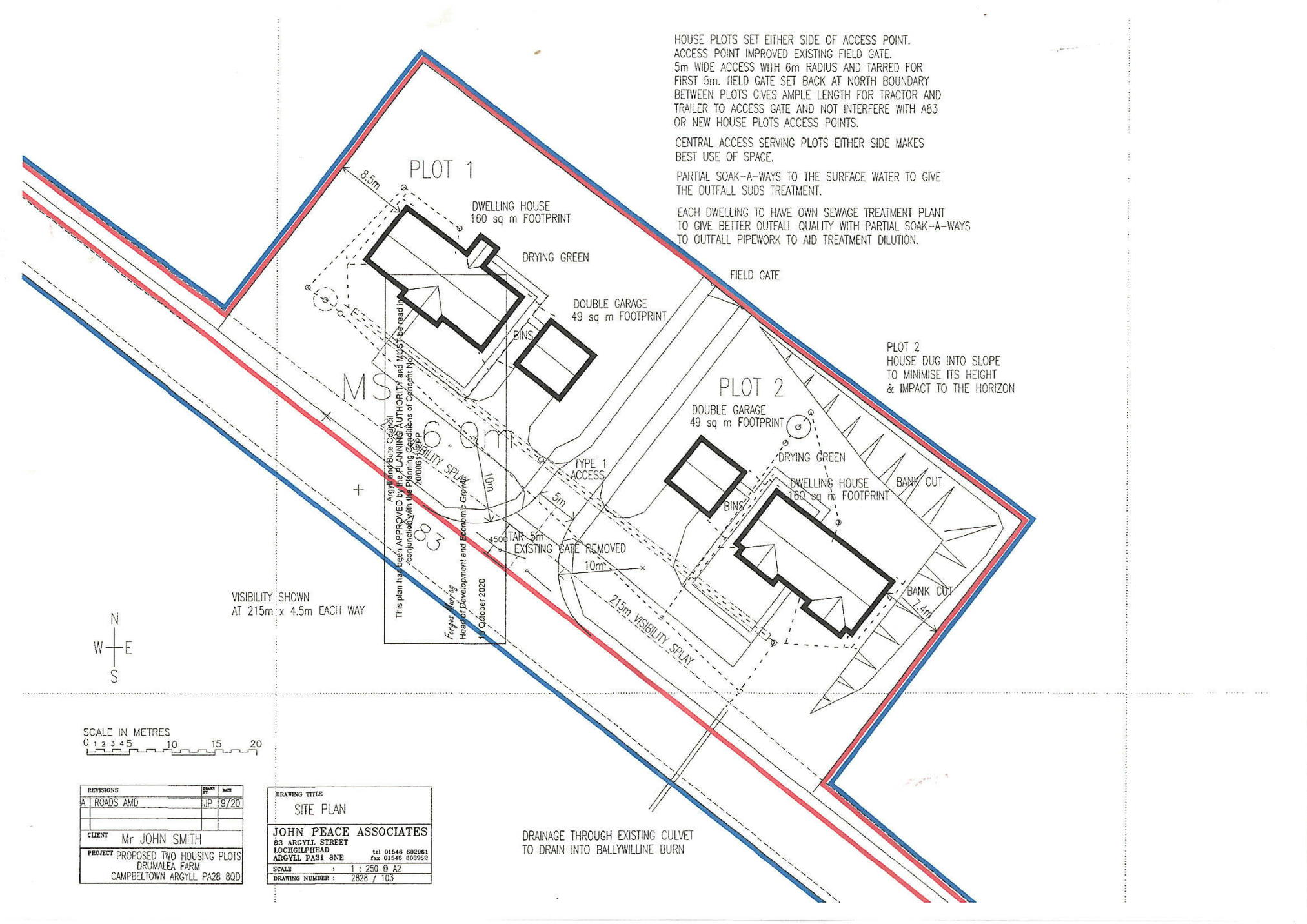
- Planning Permission in Principle granted for a storey-and-a-half dwelling (Ref. 20/00611/PPP).
- Located in a rural area near Campbeltown with potential scenic surroundings.
- Seller to cover required access road modifications to meet planning authorities' standards.
- Potential for additional servitudes for water and sewage connection from neighboring land.
**Potential Concerns:**
- The plot is offered on an un-serviced basis; buyers must cover their own water and drainage costs.
- Broadband speeds noted as very slow, which could impact remote connectivity for future residents.
- Located in a more deprived area, which may affect long-term investment outlook.
**Summary:**
Discover a fantastic opportunity to create your dream home in the picturesque setting of South East of Kilmichael Farm, Campbeltown. This generous 0.4-acre plot comes with Planning Permission in Principle for a stylish storey-and-a-half residence, providing a canvas for customization and future expansion. Embrace the tranquility of rural living while enjoying the conveniences of nearby Campbeltown.
The seller will handle essential access road modifications, easing the way for your vision to come to life. While the plot is un-serviced and buyers will need to arrange their water and drainage, the potential for a self-sufficient homestead is undeniable. Perfect for families looking to settle down or investors seeking a solid development plot, take advantage of this exclusive opportunity to craft a home tailored to your needs. Don’t let this chance slip away; start envisioning your future today in this inviting rural landscape.
Plot for sale in South East of Kilmichael Farm, Campbeltown, PA28 — £60,000 • 1 bed • 1 bath
Plot for sale in Plot, North West Of Auchencorvie Farm, By Campbeltown, PA28 — £60,000 • 1 bed • 1 bath
Plot for sale in Building Plot, Beinn Ghuilean View by Knockscalbert Way, Campbeltown PA28 6TA, PA28 — £98,000 • 4 bed • 2 bath • 1831 ft²
Land for sale in Hillside Road, Campbeltown, PA28 — £85,000 • 1 bed • 1 bath
Plot for sale in Building Plot, Macharioch Farm, Southend, PA28 — £100,000 • 1 bed • 1 bath
Land for sale in Saddell Home Farm Plot, Saddell, by Campbeltown, PA28 6QS, PA28 — £65,000 • 1 bed • 1 bath






























