Detached family home with garage, driveway and scope to modernise.
Detached three-bedroom house with feature bay window and fireplace
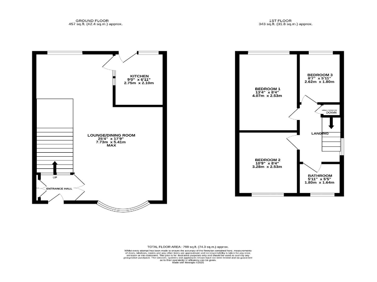
This three-bedroom detached home on Mallard Crescent offers straightforward family living in a quiet, well-regarded Poynton suburb. The ground floor features a generous lounge/dining room with a bay window and feature fireplace, and a functional fitted kitchen to the rear. Upstairs are two double bedrooms, one single bedroom and a single family bathroom. The property is freehold, gas‑central heated and double glazed.
Outside, a paved low‑maintenance rear garden, a flagged driveway and a detached single garage provide useful off‑street parking and storage. The plot is a decent suburban depth and the immediate area benefits from very low crime, excellent mobile and fast broadband, easy access to the train station/A555 and several well-rated primary and secondary schools.
The house is tidy but dated in places (worn carpets and serviceable kitchen/bathroom finishes). There is clear scope to modernise kitchen, bathroom and floor finishes to add value. The compact internal floor area (approx. 799 sq ft) means accommodation is modest — suitable for a small family, first-time buyers wanting a detached house, or an investor seeking a manageable rental property.
Key positives: detached position, garage and driveway, popular residential location and good transport links. Important considerations: single bathroom only, modest total floor area and dated internal finishes requiring cosmetic updating for long‑term modern comfort.
3 bedroom detached house for sale in Mallard Crescent, Poynton, SK12 — £425,000 • 3 bed • 1 bath • 818 ft²
3 bedroom detached house for sale in Lostock Avenue, Poynton, SK12 — £575,000 • 3 bed • 1 bath • 1119 ft²
3 bedroom detached house for sale in Brookfield Avenue, Poynton, SK12 — £625,000 • 3 bed • 2 bath • 1296 ft²
2 bedroom semi-detached house for sale in Distaff Road, Poynton, SK12 — £350,000 • 2 bed • 1 bath • 774 ft²
3 bedroom detached house for sale in Fulmar Close, Poynton, SK12 — £450,000 • 3 bed • 1 bath • 1364 ft²
4 bedroom detached house for sale in Dickens Lane, Poynton, SK12 — £725,000 • 4 bed • 2 bath • 1616 ft²


























































