Modern family living near schools and Lincoln with upgrade options available.
High-spec new build with 10-year NHBC warranty
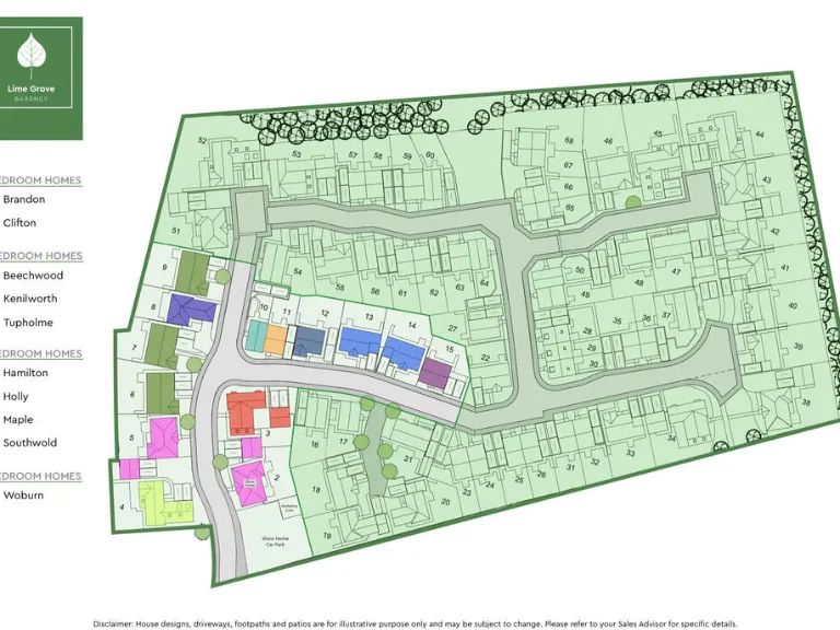
A modern four-bedroom detached home on the Lime Grove development, The Maple is finished to a high specification and designed for family living. The ground floor offers an open-plan kitchen–diner with garden access, a dual-aspect lounge, study and utility space. Upstairs has a master with en‑suite, three further bedrooms and a family bathroom. Built new with contemporary fixtures, it includes wiring provision for EV charging and comes with a 10-year NHBC warranty.
The house is well placed for families: it’s within walking distance of Bardney Church of England and Methodist Primary School and positioned for straightforward commutes into Lincoln. The development sits on the edge of open countryside, offering access to local walking routes and village amenities while remaining close to shops, surgery and community facilities.
Buyers should note material facts plainly: the overall internal area is modest (about 890 sq ft) and the plot and garden are small. There is a medium flooding risk for the area, and garages are plot-specific (so not guaranteed for every plot). An annual maintenance/service charge of £199.71 applies for communal upkeep. These factors are balanced by the new-build specification, parking provision and flexible layout.
This property will suit growing families or purchasers looking for a low-maintenance, newly built home close to village amenities and commuter routes. There are upgrade options available during the build if you want a tailored finish, and the house is offered freehold for straightforward ownership.
4 bedroom detached house for sale in Saxon Way, Lincoln, LN3 — £300,000 • 4 bed • 2 bath • 874 ft²
4 bedroom detached house for sale in Plot 3, The Hamilton, Lime Grove, Bardney, LN3 — £425,000 • 4 bed • 2 bath • 1808 ft²
4 bedroom detached house for sale in Plot 5, The Southwold, Lime Grove, Bardney, LN3 — £440,000 • 4 bed • 2 bath • 1819 ft²
4 bedroom detached house for sale in Saxon Way, Bardney, LN3 — £425,000 • 4 bed • 3 bath • 1878 ft²
4 bedroom detached house for sale in Saxon Way, Bardney, LN3 — £440,000 • 4 bed • 3 bath • 1868 ft²
4 bedroom detached house for sale in St. Augustine Road,
Lincoln,
LN2 — £350,000 • 4 bed • 1 bath • 867 ft²










































































