Balcony and parking close to Reading station and town centre.
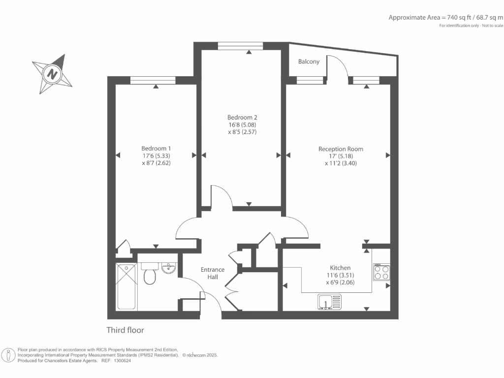
Two bedrooms with open-plan living and balcony
This third-floor two-bedroom apartment offers straightforward, city-centre living a short walk from Reading station and The Oracle. The open-plan living/dining area flows onto a balcony, and the apartment includes an off-street parking space — useful extras for commuters or renters.
At about 740 sq ft, the layout is traditional with an average-sized room count and double glazing. Electric storage heaters and all-electric services keep the infrastructure simple, but buyers should expect running costs to reflect electric heating. The property is sold chain free, which can speed completion for a buyer who wants a quick move or a fast let-in.
A material drawback is the lease length: 79 years remaining. This is likely to deter many mortgage lenders and could restrict mortgage availability or require a specialist lender or a cash purchase. The lease issue is the single most important factor for purchasers and affects long-term value and mortgageability.
Located close to good schools and a wide range of local amenities, the flat will suit first-time buyers who can fund or secure appropriate finance, and investors seeking a city-centre rental with commuter appeal — provided they account for the lease limitation in purchase planning.
2 bedroom flat for sale in Reading, Berkshire, RG1 — £290,000 • 2 bed • 2 bath • 731 ft²
2 bedroom flat for sale in Town Centre, Access to Town Centre/The Oracle and Reading Station, RG1 — £290,000 • 2 bed • 2 bath • 775 ft²
2 bedroom apartment for sale in Oscar Wilde Road, Reading, Berkshire, RG1 — £260,000 • 2 bed • 2 bath • 784 ft²
2 bedroom apartment for sale in Merchants Place, Reading, RG1 — £200,000 • 2 bed • 1 bath • 596 ft²
2 bedroom apartment for sale in 20 Kennet Street, Reading, RG1 — £325,000 • 2 bed • 2 bath • 820 ft²
2 bedroom apartment for sale in Kennet Street, Reading, Berkshire, RG1 — £270,000 • 2 bed • 1 bath • 786 ft²










































































