Historic Grade II inn with brewery, river gardens and 10 letting rooms..
- Grade II listed 15th‑century coaching inn with historic character
- Ten en suite letting rooms plus staff cottage for on‑site staff
- On‑site microbrewery and former bakery with equipment in situ
- Approximately 2.78 acres with extensive river frontage and beer garden
- Awarded Good Pub Guide recognition; hosts popular monthly market
- Medium flood risk; flooding occurred in 2020 despite remedial works
- Listed status will restrict alterations and may complicate repairs
- EPC concerns for brewery (G) and bakery (D); private drainage
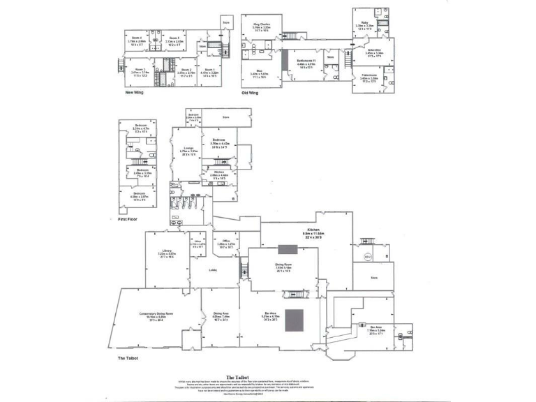
The Talbot is a rare, historic coaching inn on approximately 2.78 acres in the Teme Valley, offering significant commercial and lifestyle potential. The Grade II listed property includes two large public bars, dining and function rooms, a well‑equipped commercial kitchen, and ten en suite letting rooms — an established hospitality business with a long local reputation and awards for country dining. On‑site operations include the Teme Valley Brewery and former bakery (equipment in situ), plus a staff cottage and extensive outbuildings.
The grounds provide substantial value: large beer gardens on the riverbank, a productive kitchen garden and a children‑friendly outdoor area, with an adjoining rented car park of about 0.75 acres. The site suits an operator seeking a destination country inn, events venue or brewery‑led hospitality business, and benefits from excellent mobile signal and easy road access to Worcester, Malvern and Bromyard.
Material considerations are significant and should be weighed by any buyer. The building is Grade II listed, which will restrict alterations and may complicate maintenance. The site experienced flooding in 2020 and is assessed as medium flood risk; remedial and preventative works have been undertaken but future flood resilience measures may be required. The brewery has a poor EPC (G 171) and the bakery EPC is D (95). Drainage is to a private system; gas is via propane. Interested parties should verify services, licences and trading accounts and be prepared for listed‑building repair and regulatory compliance.
This opportunity suits an investor or experienced hospitality operator prepared to manage a listed rural business with heritage fabric, riverfront land and onsite brewing/bakery infrastructure. It offers an iconic venue and established trading history, but comes with ongoing maintenance, regulatory and flood‑risk responsibilities.
Pub for sale in Talbot Hotel, 29 High Street, Cleobury Mortimer, Kidderminister, DY14 8DQ, DY14 — £475,000 • 1 bed • 1 bath • 463 ft²
Pub for sale in Bridge Inn Plough Road Tibberton Droitwich Worcestershire WR9 7NQ , WR9 — £425,000 • 1 bed • 1 bath
Pub for sale in Lower Lode Inn, Bishops Walk
Forthampton, Tewkesbury, GL19 4RE, GL19 — £650,000 • 1 bed • 1 bath
Pub for sale in The Manor Arms, The Village, Abberley, Worcester, WR6 6BN, WR6 — £1,150,000 • 1 bed • 1 bath • 5766 ft²
Pub for sale in The Oak Inn Staplow LEDBURY Herefordshire HR8 1NP United Kingdom, HR8 — £900,000 • 1 bed • 1 bath
Pub for sale in M-528899 - Jockey Inn, Baughton, Nr Pershore WR8 9DQ, WR8 — £795,000 • 1 bed • 1 bath


















































































