Character cottage with recent upgrades and buy-to-let potential.
Chain-free charming stone cottage in Portesham village
Set in the picturesque village of Portesham within an Area of Outstanding Natural Beauty, this stone-built cottage combines period charm with practical upgrades. The house benefits from a 2015 roof replacement with 350mm insulation and breathable membrane, double glazing, full gas central heating and a recent five-year EICR. With an EPC rating of C and offered chain-free, it suits buyers wanting a ready-to-live-in character home or investors targeting holiday lets or buy-to-let income.
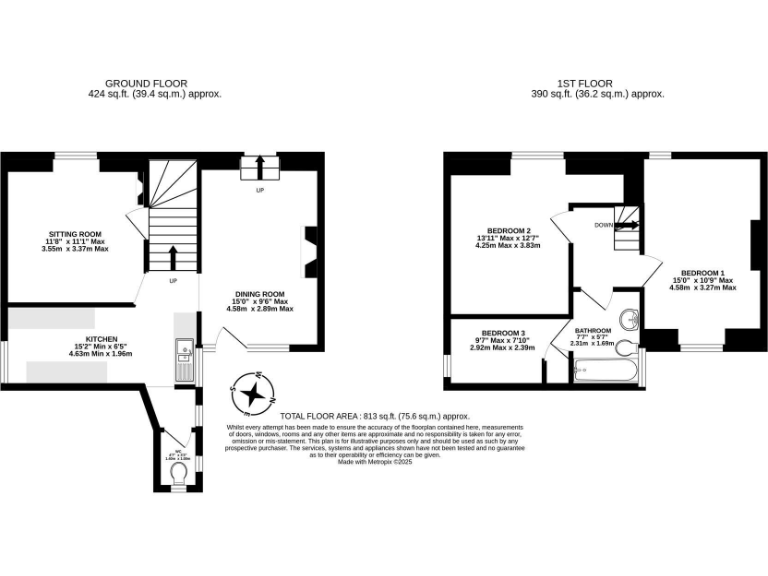
Internally the layout is compact and practical: two reception rooms (both with fireplaces), a fitted kitchen with direct access to the rear garden, ground-floor WC, three bedrooms and a family bathroom. The rear garden is low-maintenance shingled space, currently private but sold on a separate title from the house. There is no garage and the plot is small, so outdoor space is limited but easy to care for.
Notable practical points are stated plainly: the property is sold as seen, the house and garden are on separate titles, and the seller advises there is a right of way across the full width of the rear garden (currently blocked and not in use). Broadband is average and mobile signal varies by provider. The cottage is in a conservation area and close to local facilities including a primary school, farm shop and a village pub, with Dorchester and Weymouth within easy driving distance.
This is a cottage for someone who values location, character and low ongoing renovation risk from recent works, but accepts modest living space and some legal/title quirks to resolve. It will particularly suit buyers seeking a manageable village home or investors looking for a holiday-let in a sought-after Dorset setting.
3 bedroom semi-detached house for sale in Back Street, Portesham, Weymouth, DT3 — £325,000 • 3 bed • 1 bath • 803 ft²
3 bedroom detached house for sale in Back Street, Portesham, Weymouth, DT3 — £595,000 • 3 bed • 2 bath • 1934 ft²
3 bedroom semi-detached house for sale in Manor Close, Portesham, Weymouth, Dorset, DT3 — £359,950 • 3 bed • 1 bath • 1126 ft²
2 bedroom end of terrace house for sale in Dorchester Road, Weymouth, DT3 — £270,000 • 2 bed • 1 bath • 926 ft²
2 bedroom cottage for sale in Wyke Road Weymouth, DT4 — £395,000 • 2 bed • 1 bath
3 bedroom cottage for sale in Winterbourne Abbas, Dorchester, DT2 — £400,000 • 3 bed • 1 bath • 990 ft²






















































































































































































