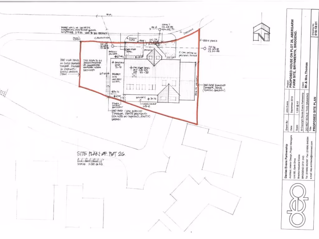
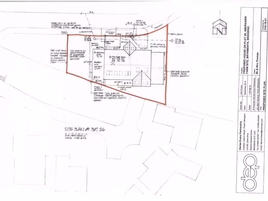
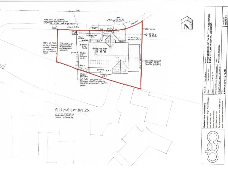
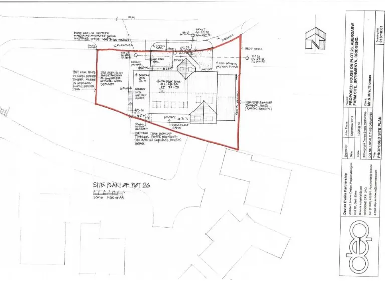
**Standout Features:**
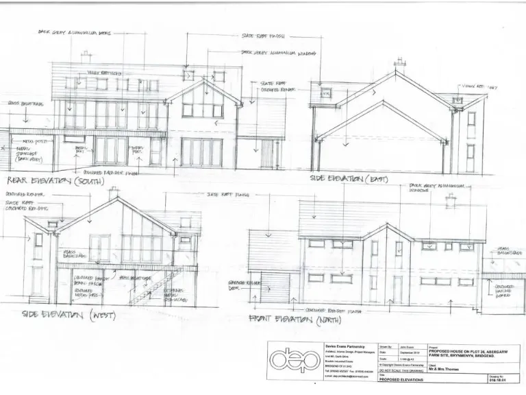
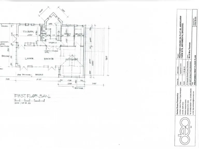
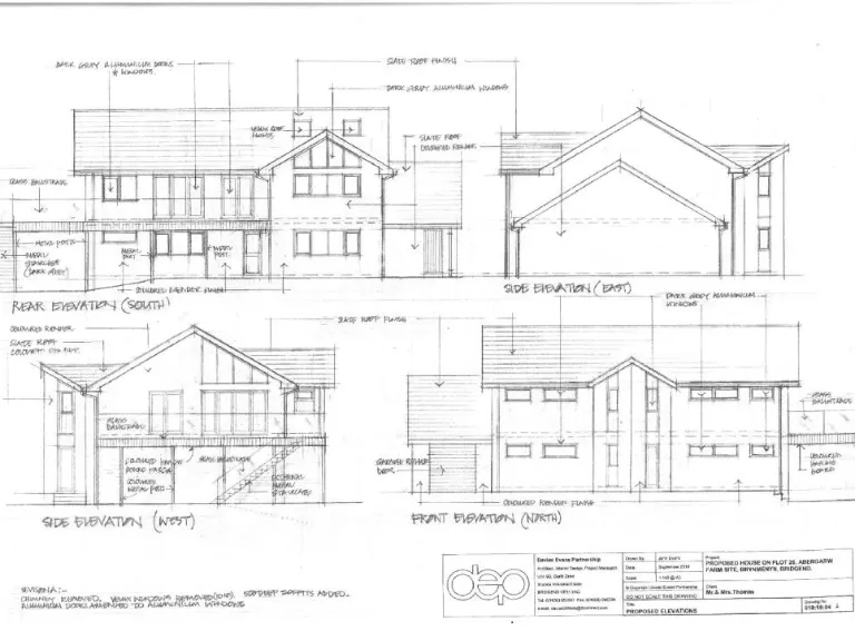
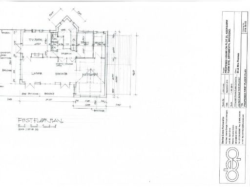
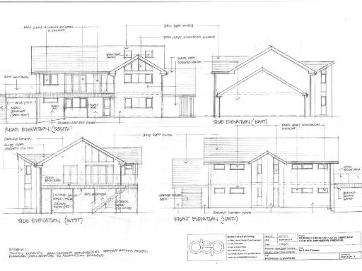
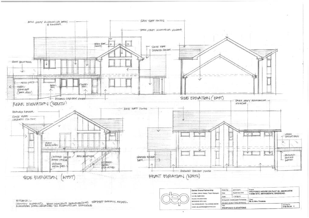
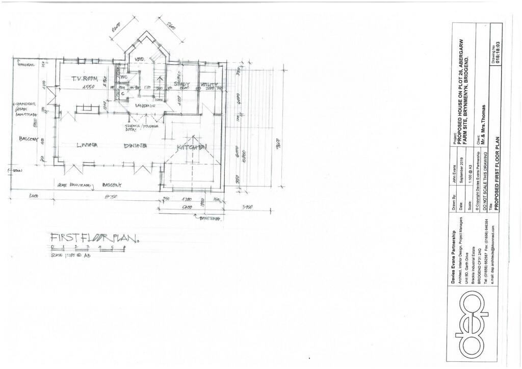
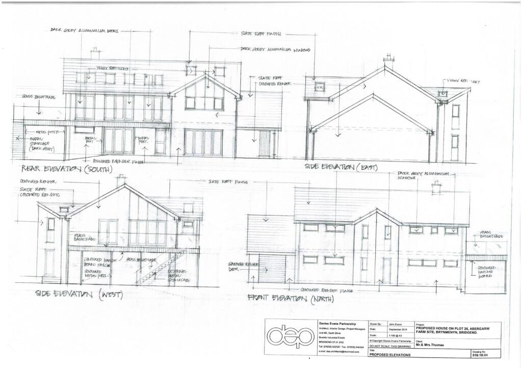
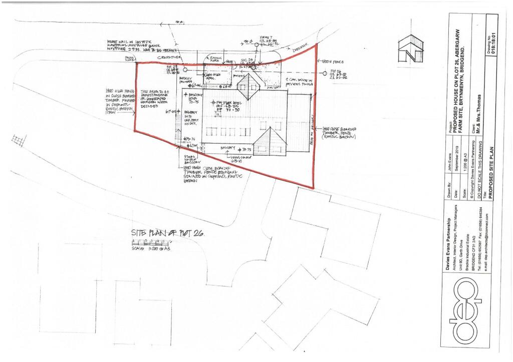
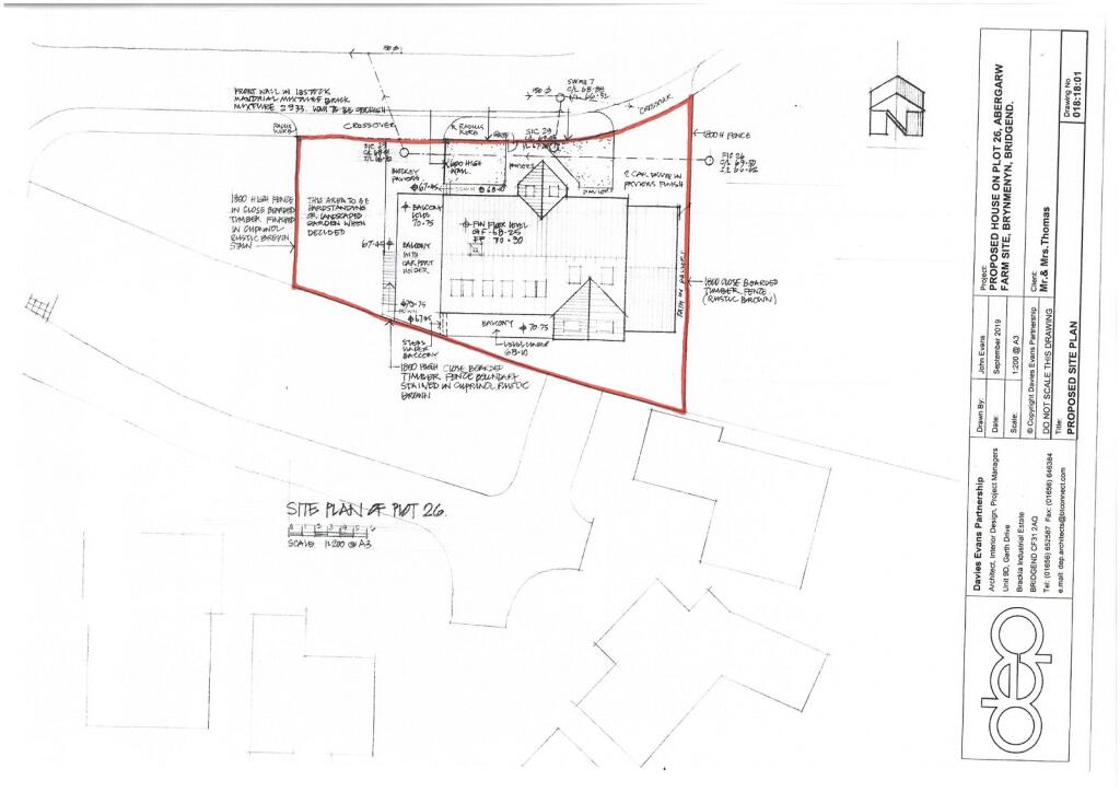
- Building plot for a detached dwelling with garage and carport
- Large plot size with potential for modern architecture
- Planning reference P/19/721/RES was granted on November 7, 2019, but has since lapsed
- Located in a comfortable neighborhood with excellent mobile signal and fast broadband
- Close to leisure amenities and playgrounds
**Potential Concerns:**
- Crime rate in the area is above average
- Area is classified as very deprived, which may impact future property value
- Planning permission needs to be reapplied for
Discover the potential of this sizable building plot located in the heart of a comfortable neighborhood, perfect for those looking to create their dream home. With plans previously granted for a modern detached dwelling featuring a garage and carport, there's a unique opportunity to design a space tailored to your vision. Ideal for self-build enthusiasts, the plot allows for flexibility in design and encourages a contemporary architectural approach.
While the planning permission lapsed in 2019, it offers an excellent opportunity to reapply and build at your own pace. Enjoy the benefits of fast broadband and excellent mobile coverage. However, it's important to consider the area's above-average crime rate and socio-economic challenges, which could influence long-term investment. The proximity to leisure facilities and playgrounds makes this site a considerable option for those aiming for a family-friendly environment or an investment project. Act quickly—opportunities like this don't last long!
Land for sale in Owen Jones Way, Bryn, Port Talbot, SA13 — £100,000 • 1 bed • 1 bath • 2000 ft²
Plot for sale in Lewis Terrace, Porth, CF39 — £18,000 • 1 bed • 1 bath
Land for sale in Convil Road, Blaengarw, Bridgend, CF32 8BN, CF32 — £100,000 • 1 bed • 1 bath
House for sale in Cefn Glas Road, Bridgend CF31 4PG, CF31 — £75,000 • 1 bed • 1 bath
Plot for sale in Adjacent former Three Horse Shoes Public House Lamb Row South Cornelly, South Cornelly, Bridgend, CF33 — £105,000 • 1 bed • 1 bath
Land for sale in Varteg Row,Bryn,Port Talbot,SA13 2RF, SA13 — £130,000 • 1 bed • 1 bath






























