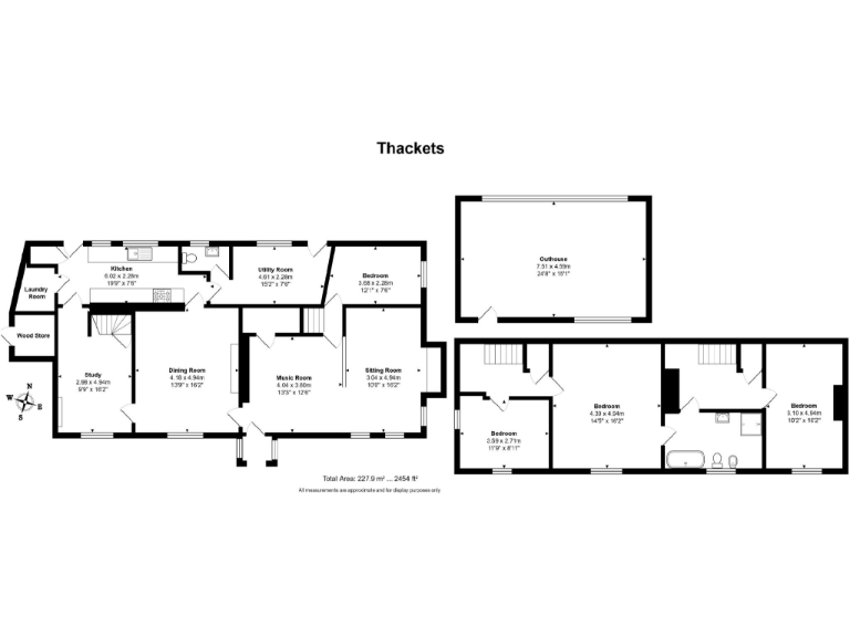
Characterful four-bed thatched cottage with large outbuilding and sunlit garden, close to Marlborough.
- Thatched roof fully renewed in 2017
- Four bedrooms plus ground-floor bedroom ideal for multi-generational living
- Large outbuilding suitable for gym, studio or storage
- Private, sun-filled rear garden with good privacy
- Ample driveway parking for multiple vehicles
- Oil-fired central heating; higher fuel and maintenance costs likely
- Solid brick walls possibly uninsulated; EPC E
- Located in high flood-risk area; insurance/mitigation needed
Set in picturesque Froxfield, this thatched four-bedroom detached cottage blends traditional character with generous, flexible family space. The sitting room centres on a large open fireplace beneath exposed beams, while a separate dining room and a family room/study give scope for entertaining and home working. A convenient ground-floor bedroom alongside utility and laundry rooms supports single-level living or long-term guests.
Outdoors the private, sun-filled rear garden and ample driveway parking are complemented by a large outbuilding that could be a gym, studio or substantial storage. The thatch was completely renewed in 2017, conserving the cottage’s historic appearance while reducing immediate roof maintenance concerns. A virtual tour is available for an initial viewing.
Important practical points: heating is by oil-fired boiler to radiators and the property has solid brick walls (likely without cavity insulation). The EPC is E and council tax is in the higher band G, so running costs should be factored in. The location lies in an area identified with high flood risk, which is a material consideration for insurance and resilience measures.
This home will suit families seeking character, space and village life close to Marlborough and Hungerford, or buyers wanting an adaptable period property to update and personalise. For those prepared to manage the energy and flood-related implications, the house offers rare scale, a substantial outbuilding and a delightful sunlit garden in a very affluent rural setting.
2 bedroom cottage for sale in Ludgershall Road, Collingbourne Ducis, Marlborough, SN8 — £450,000 • 2 bed • 2 bath • 688 ft²
3 bedroom cottage for sale in Farm Lane, Great Bedwyn, Wiltshire, SN8 3LU., SN8 — £439,500 • 3 bed • 1 bath • 1218 ft²
5 bedroom detached house for sale in Goodworth Clatford, Andover, Hampshire, SP11 — £1,125,000 • 5 bed • 3 bath • 2793 ft²
4 bedroom cottage for sale in Sunton, Marlborough, SN8 — £899,000 • 4 bed • 2 bath • 2547 ft²
4 bedroom detached house for sale in Lower Fyfield, Marlborough, Wiltshire, SN8 — £1,250,000 • 4 bed • 2 bath • 2908 ft²
3 bedroom detached house for sale in Baydon Road, Wickham, RG20 — £530,000 • 3 bed • 1 bath • 1958 ft²






















































































































































































































































































