Chain-free first-floor home with allocated parking and lift access.
Sea and west-cliff views from most rooms
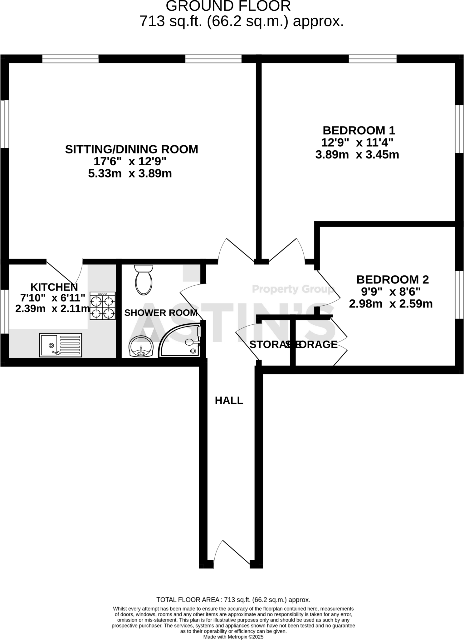
A well-situated two-bedroom first-floor apartment with sweeping sea and west-cliff views from almost every window. The property occupies 853 sq ft and sits in a period building (c.1900–1929) with traditional room proportions, double glazing and communal grounds that open toward the seafront.
Practical features include an allocated private parking space, lift access, a communal laundry room and a useful hallway storage cupboard. The layout offers a lounge, two double bedrooms, a shower room and a kitchen oriented toward Sandsend sunsets — suitable for full-time living, a second home or a long-term let.
Important considerations: the flat is leasehold, holiday letting is not permitted, and the building’s solid-brick construction likely lacks cavity insulation. Broadband is average locally and the wider area records higher deprivation levels, though crime rates are low and mobile signal is excellent. Sold chain free.
This apartment will suit buyers seeking a seaside retreat with easy access to town amenities and low council tax — particularly downsizers or retirees who value views, parking and lift access but who should budget for possible energy-efficiency upgrades.
1 bedroom apartment for sale in Upgang Lane, Whitby, YO21 — £199,950 • 1 bed • 1 bath • 664 ft²
2 bedroom flat for sale in Ladysmith Avenue, WHITBY, North Yorkshire, YO21 — £270,000 • 2 bed • 2 bath • 1005 ft²
2 bedroom apartment for sale in Church Square, Whitby, YO21 — £165,000 • 2 bed • 1 bath • 568 ft²
2 bedroom apartment for sale in Royal Crescent, Whitby, YO21 — £250,000 • 2 bed • 1 bath • 876 ft²
2 bedroom apartment for sale in Royal Crescent, Whitby, YO21 — £240,000 • 2 bed • 1 bath • 862 ft²
2 bedroom apartment for sale in Flat 15, 19 Royal Crescent, Whitby, YO21 — £189,950 • 2 bed • 1 bath • 602 ft²






































































































