**Standout Features:**
- Unique 8-bedroom semi-detached Grade II Listed house
- Stunning views of the River Medway and Rochester Castle
- Located in a sought-after conservation area
- Abundance of historical charm with secret passageway and basement
- Spacious garden with a variety of mature trees and serene views
**Property Overview:**
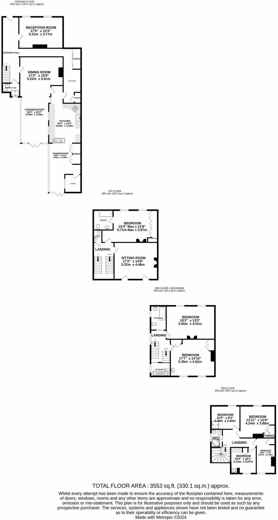
Nestled in the heart of Rochester, this remarkable 8-bedroom semi-detached residence, built in 1701, offers a rare opportunity to own a piece of history. Spanning an impressive 3,553 square feet, this home boasts a grand entrance, spacious living and dining areas, along with multiple conservatory spaces that fill the interior with natural light. The charming kitchen features a hidden passageway leading to the basement, a nod to the property’s storied past.
With views of the iconic River Medway and Rochester Castle from the secondary kitchen and two family bathrooms, this home not only presents a unique living experience but also endless memories waiting to be made. Outdoors, the generous garden serves as a tranquil retreat complete with beautiful landscaping, ideal for entertainers and nature lovers alike.
While rich in character and located close to amenities, including schools, transportation options, and leisure activities, potential buyers should note that renovations or extensions may be challenging due to its listed status. Given its historical significance and sizeable layout, this property is an extraordinary find for families or investors looking for a notable addition to their portfolio. This is a rare opportunity that won’t be around for long; schedule a viewing today and imagine creating your story here!
5 bedroom terraced house for sale in Wellesley House, Wellesley House, Rochester, Kent, ME1 — £1,200,000 • 5 bed • 4 bath • 3039 ft²
3 bedroom end of terrace house for sale in The Terrace, Rochester, Kent, ME1 — £575,000 • 3 bed • 2 bath • 1453 ft²
4 bedroom town house for sale in Star Hill, Rochester, ME1 — £425,000 • 4 bed • 1 bath • 1590 ft²
4 bedroom detached house for sale in St. Margarets Street, Rochester, Kent, ME1 — £799,995 • 4 bed • 2 bath • 2162 ft²
4 bedroom detached house for sale in St. Margarets Street, Rochester, ME1 — £975,000 • 4 bed • 2 bath • 5006 ft²
5 bedroom town house for sale in Georgian Elegance, Boley Hill, Rochester, ME1 — £2,000,000 • 5 bed • 2 bath • 4681 ft²






























































