Low-price auction lot for buyers ready to renovate and add value.
Freehold Victorian terrace with two bedrooms and one bathroom
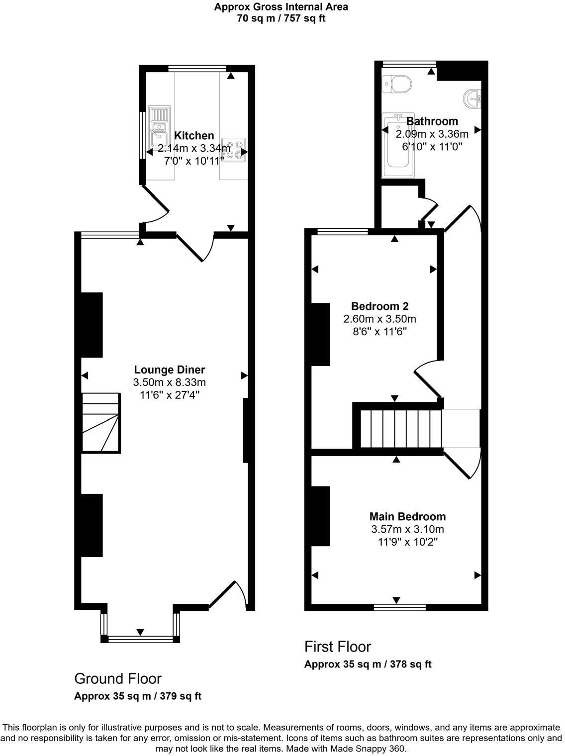
An affordable two-bedroom Victorian terraced freehold in Stoke-on-Trent, offered for sale by online auction. The property features a long through lounge/dining room (27ft+), kitchen, two bedrooms and an upstairs bathroom across an average-sized 757 sq ft layout. There is a rear garden, on-street parking and rear vehicle access with potential to add off-road parking.
The house requires minor refurbishment throughout and presents clear scope to add value—rear extensions are possible subject to planning. Broadband speeds and mobile signal are strong, and there is no flooding risk. The property is vacant and will be sold at auction on 15 October 2025, so purchasers should download the legal pack and register before bidding.
Location is city-centre close with access to Hanley’s shops, leisure and transport links. The immediate neighbourhood is in a very deprived classification and a mixed private-renting area, so buyers should weigh local socio-economic factors alongside the upside from refurbishment and rental or resale potential.
2 bedroom terraced house for sale in Adkins Street, Stoke-on-Trent, ST6 — £29,000 • 2 bed • 1 bath
3 bedroom end of terrace house for sale in Pinnox Street, Stoke-on-Trent, ST6 — £35,000 • 3 bed • 1 bath
2 bedroom end of terrace house for sale in Fell Street, Stoke-On-Trent, ST6 1JT, ST6 — £86,000 • 2 bed • 1 bath • 786 ft²
2 bedroom terraced house for sale in Davis Street, Stoke-On-Trent ST4 7AD, ST4 — £25,000 • 2 bed • 1 bath
2 bedroom terraced house for sale in 2 Hines Street, Stoke-On-Trent, Staffordshire ST4 3AT, ST4 — £50,000 • 2 bed • 1 bath • 635 ft²
2 bedroom terraced house for sale in Berdmore Street, Stoke-on-Trent, ST4 — £29,000 • 2 bed • 1 bath • 812 ft²






































































