Low-maintenance apartment near shops, buses and medical services.
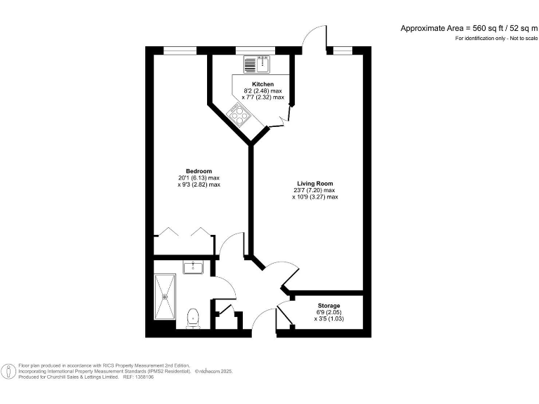
Ground-floor one-bedroom apartment with private patio
This ground-floor one-bedroom retirement apartment offers easy single-level living with a private patio overlooking well-kept communal gardens. The living room opens through French doors to the patio and links to a practical kitchen; the double bedroom includes a built-in wardrobe and the shower room has accessible fittings.
Meyer Court is purpose-built for retired owners and provides on-site support from a House Manager five days a week, an owners’ lounge, residents’ laundry, buggy store and an Owners’ car park. A guest suite is available for visitors, and owners can use guest suites at other Churchill Living developments nationwide, adding convenience for visiting family.
Practical points to note: the property uses electric storage heating (no communal gas), and the apartment is leasehold with about 108 years remaining. Annual service charges are approximately £2,962.60 and cover Careline monitoring, building insurance, communal utilities, cleaning, garden and lift maintenance and a contingency contribution.
Positioned close to local shops, bus stops and healthcare, this low-maintenance apartment suits buyers seeking a secure, sociable retirement base with good local connections and minimal outdoor upkeep. The block was built in 2007 and is well maintained, with low local crime and fast broadband for staying connected.
1 bedroom retirement property for sale in Meyer Court, Exeter, EX2 — £125,000 • 1 bed • 1 bath • 495 ft²
2 bedroom retirement property for sale in Meyer Court, Exeter, EX2 — £160,000 • 2 bed • 1 bath • 812 ft²
1 bedroom retirement property for sale in Meyer Court, Exeter, EX2 — £135,000 • 1 bed • 1 bath • 547 ft²
1 bedroom retirement property for sale in Butts Road, Heavitree, Exeter, EX2 — £129,500 • 1 bed • 1 bath • 509 ft²
1 bedroom retirement property for sale in Butts Road, Exeter, EX2 — £100,000 • 1 bed • 1 bath • 545 ft²
1 bedroom retirement property for sale in Butts Road, Heavitree, Exeter, EX2 — £139,500 • 1 bed • 1 bath • 534 ft²














































































