**Standout Features:**
- Brand new, detached bungalow in Eastrea
- Three spacious bedrooms, including an en suite shower room
- Modern kitchen with quality fittings and integrated Bosch appliances
- Utility room and walk-in pantry for added convenience
- Garage with remote-operated door and driveway parking
- Energy-efficient underfloor heating
- Located in a charming, low-crime village with community amenities
**Potential Downsides:**
- Being a new build, construction is still underway
- Turfing for the rear garden may need to be arranged
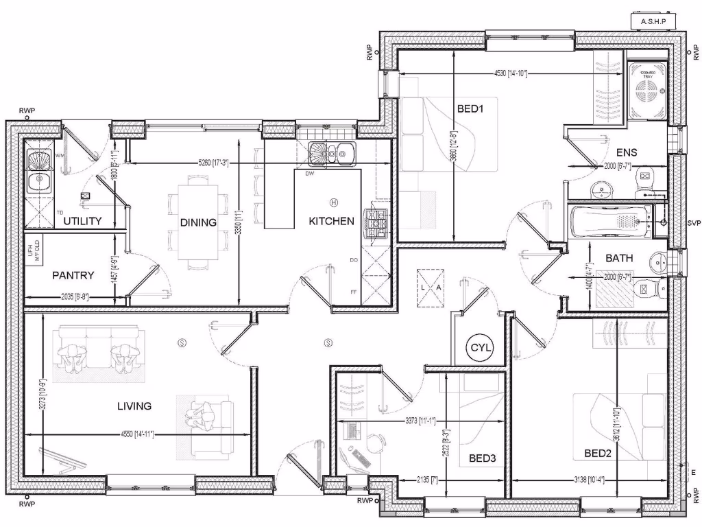
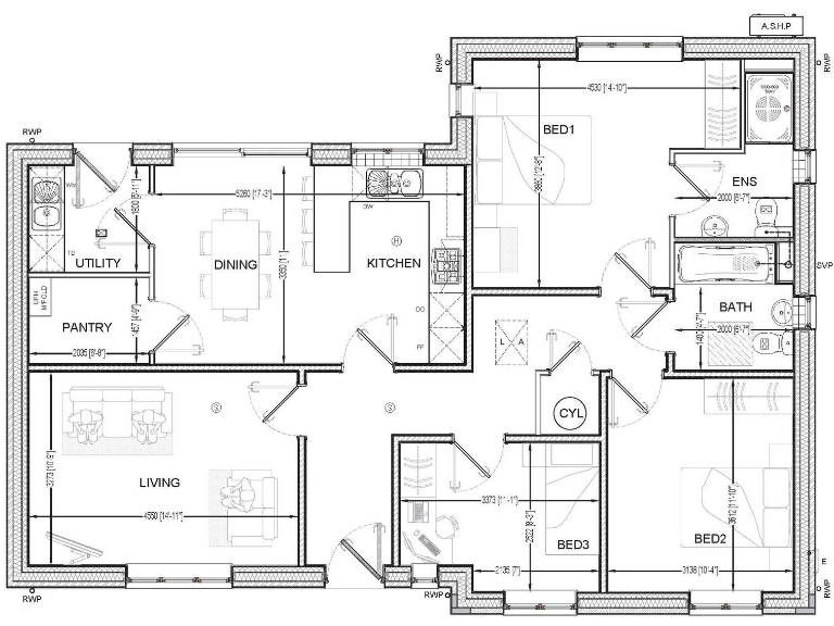
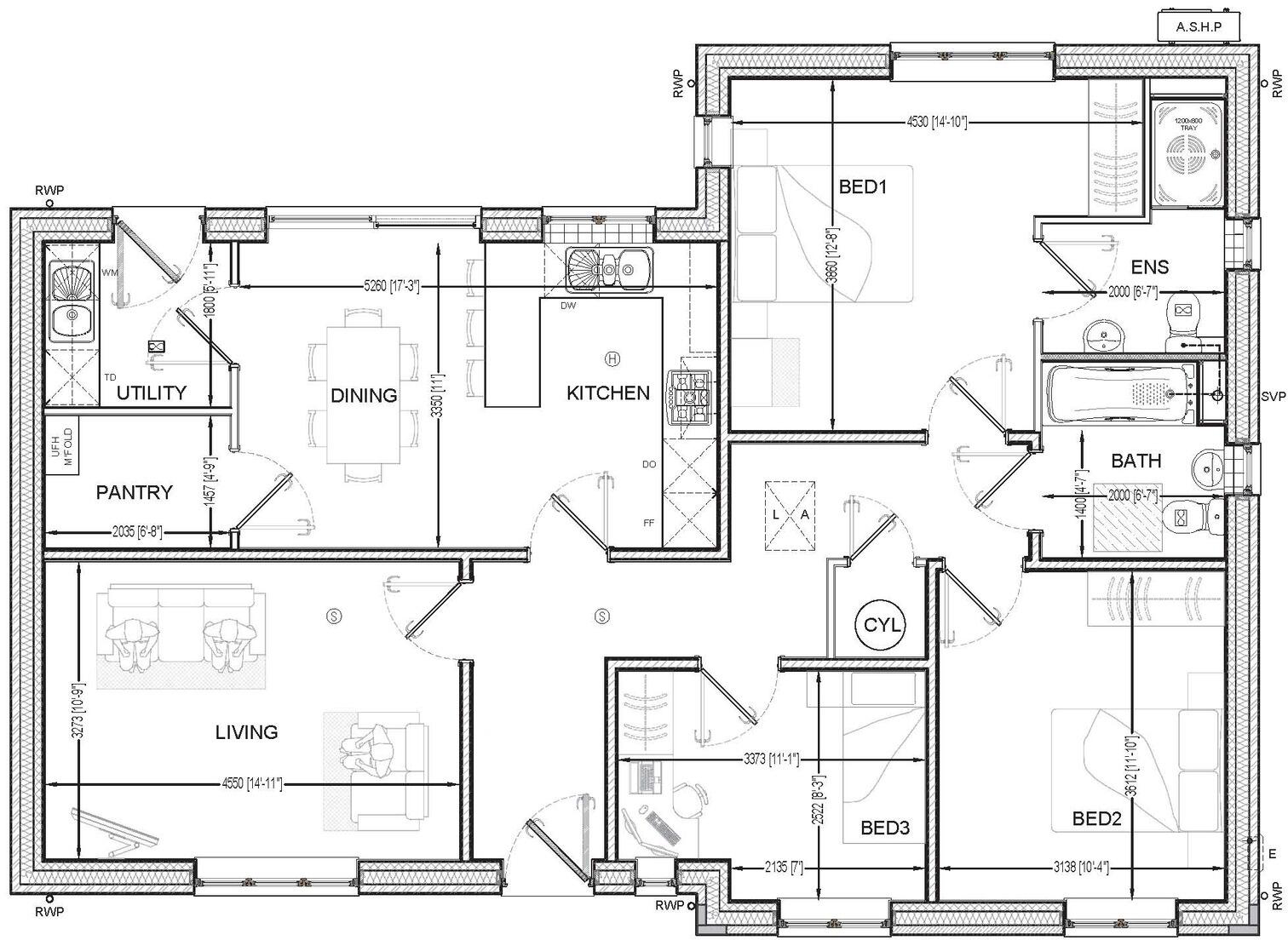
Discover your dream home in the heart of Eastrea with this exquisite brand-new bungalow, expertly designed with modern living in mind. Spanning 1,009 square feet, this property boasts three generous bedrooms, including a master with an en suite. The open-plan kitchen features high-end quartz worktops and Bosch appliances—perfect for cooking enthusiasts—while the inviting lounge provides a cozy space to relax.
Enjoy the peace of rural living, surrounded by beautiful arable land and community spirit, and benefit from a range of local amenities just a stone's throw away. With excellent transport links and faster broadband speeds, this home perfectly balances comfort, convenience, and a connection to nature. The bungalow is chain-free and ready for you to move in; don’t miss out on this fantastic opportunity to secure a high-quality home in a desirable location.
3 bedroom bungalow for sale in Coates Road, Eastrea, Cambs, PE7 — £425,000 • 3 bed • 2 bath • 887 ft²
4 bedroom bungalow for sale in Coates Road, Eastrea, Cambs, PE7 — £475,000 • 4 bed • 3 bath • 1687 ft²
4 bedroom bungalow for sale in Coates Road, Eastrea, Cambs, PE7 — £499,000 • 4 bed • 3 bath • 1687 ft²
4 bedroom bungalow for sale in Coates Road, Eastrea, Cambs, PE7 — £475,000 • 4 bed • 2 bath • 1303 ft²
4 bedroom bungalow for sale in Coates Road, Eastrea, Cambs, PE7 — £499,000 • 4 bed • 3 bath • 1687 ft²
4 bedroom bungalow for sale in Coates Road, Eastrea, Cambs, PE7 — £475,000 • 4 bed • 2 bath • 1109 ft²














