Ready-to-move-in apartment with secure parking and concierge in Brentford.
Riverside development with Juliet balcony and floor-to-ceiling windows
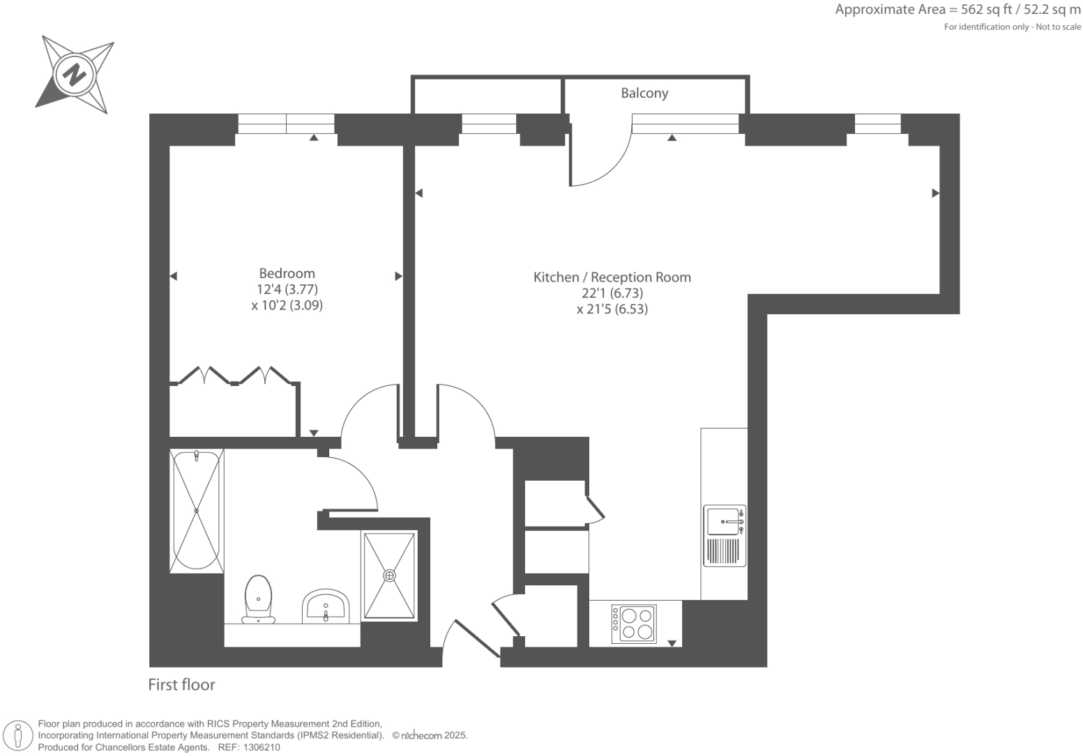
Bright and modern, this one‑bedroom first‑floor apartment sits within a riverside development and will suit a first‑time buyer seeking low‑maintenance city living. Floor‑to‑ceiling windows and an open‑plan living area create a light, airy feel, while a Juliet balcony adds a riverside aspect. The fitted kitchen and contemporary bathroom mean it’s ready to move into.
Practical comforts include secure underground parking, concierge, and fast mobile and broadband connectivity — useful for commuters and home workers. Transport links and local amenities are strong, with nearby schools rated Good or Outstanding and a variety of riverside leisure and dining options close by.
Buyers should note material costs: an above‑average service charge (£4,876 pa), ground rent (£175 pa), and council tax above local averages. The property is leasehold with approximately 97–101 years remaining. The surrounding area shows signs of deprivation and crime is average, so viewings will confirm suitability for personal priorities.
1 bedroom apartment for sale in Ferry Lane, Ferry Quays, Brentford TW8 — £325,000 • 1 bed • 1 bath • 657 ft²
1 bedroom apartment for sale in Town Meadow, Brentford, TW8 — £273,000 • 1 bed • 1 bath • 426 ft²
1 bedroom flat for sale in 4 Town Meadow, Ferry Quays, TW8 — £325,000 • 1 bed • 1 bath • 552 ft²
1 bedroom apartment for sale in Point Wharf Lane, Brentford, TW8 — £350,000 • 1 bed • 1 bath • 650 ft²
1 bedroom flat for sale in Ferry Lane, Brentford, London, TW8 — £340,000 • 1 bed • 1 bath • 606 ft²
1 bedroom flat for sale in Swan Street, Old Isleworth, TW7 — £389,000 • 1 bed • 1 bath • 505 ft²


























































































