Large plot close to the Harbourside with approved plans for a family-sized replacement home..
Approved planning for large detached family home (APP/24/01133/F)
Large plot with southerly-facing garden and potential harbour views if extended
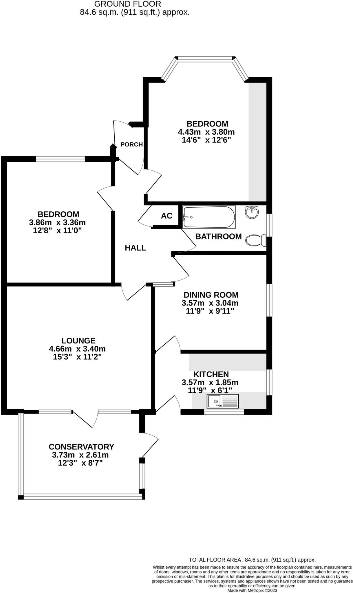
Two-bedroom detached bungalow — approximately 911 sq ft, freehold
Requires complete modernisation; significant renovation works expected
Garage shown in library photos is no longer present; driveway/garage part of planning
EPC rating E; mains gas boiler and radiators, double glazing
Minutes’ walk to Harbourside, close to Sandbanks, Ashley Cross and good schools
No flood risk; council tax moderate
This two-bedroom detached bungalow sits on a large plot in Whitecliff with approved planning (APP/24/01133/F) for a substantial detached family home. Positioned minutes from the harbourside and within Lilliput & Baden Powell school catchments, the site offers strong local appeal for families or developers seeking a seaside address with future harbour views if extended.
The existing bungalow requires complete modernization and renovation; the property is sold freehold and currently has an Energy Rating of E. CGI images are for illustration only and the garage shown in older library photos is no longer present. With mains gas heating, double glazing and a southerly-facing garden, the plot has practical foundations while needing investment to realise its potential.
Approved plans cover a large modern family house with driveway and garage. For buyers wanting to avoid full rebuild, the house can be refurbished, but significant works will be needed to reach neighbouring-standard finishes. The location — short walks to the Harbourside, Ashley Cross amenities and Sandbanks beaches — underpins long-term value in an affluent area.
This opportunity suits a growing family seeking a custom home or an investor/developer able to manage renovation or redevelopment. Note planning is approved but implementation, build costs and final approvals remain the buyer’s responsibility; the property is in a very affluent area with low flood risk and excellent local connectivity.
3 bedroom bungalow for sale in Castledene Crescent, Whitecliff, Poole BH14 8DP, BH14 — £725,000 • 3 bed • 2 bath • 1467 ft²
3 bedroom bungalow for sale in Mill Lane, Poole, Dorset, BH14 — £625,000 • 3 bed • 1 bath • 570 ft²
2 bedroom bungalow for sale in Parkstone Heights, Lower Parkstone, Poole, Dorset, BH14 — £550,000 • 2 bed • 1 bath • 1179 ft²
3 bedroom detached house for sale in Bingham Avenue, Lilliput, Poole, Dorset, BH14 — £1,175,000 • 3 bed • 2 bath • 1768 ft²
5 bedroom detached house for sale in Furze Hill Drive, Poole, Dorset, BH14 — £900,000 • 5 bed • 2 bath • 2269 ft²
4 bedroom detached house for sale in Glenmount Drive, Lower Parkstone, Poole, Dorset, BH14 — £740,000 • 4 bed • 2 bath • 2201 ft²














































