Four-bedroom family property with garden and rear parking near rail links.
Four bedrooms over three storeys, approx. 1,345 sq ft
Superb open-plan living/dining kitchen with integrated appliances
Bay-front sitting room with gas fire and good natural light
Enclosed rear garden, low-maintenance front garden
Rear gravelled off-street parking for one car
Stone-built Victorian property; walls likely uninsulated
Double glazing present; fit/age of glazing not specified
Small plot; minor updating or insulation could add value
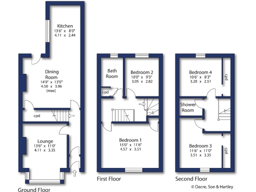
This four-bedroom end-of-terrace in Settle places generous, well-presented living space within easy walking distance of schools, shops and the railway station. The ground floor features a bay-fronted sitting room plus a superb open-plan living/dining room flowing into a modern kitchen — a practical family hub with integrated appliances and plumbing for laundry and dishwasher.
Arranged over three storeys, the house provides two double bedrooms on the first floor with a contemporary family bathroom, plus two further bedrooms and a shower room on the second floor. Recent finishes include modern bathroom and kitchen fittings, double glazing and gas central heating, delivering comfortable, move-in-ready accommodation for family living or rental investment.
Externally the property benefits from a low-maintenance front garden, an enclosed rear garden with decked and pebbled seating areas and rear access to a gravelled parking space. The town-centre location gives quick access to local amenities, the market place and the Settle–Carlisle rail line — useful for commuting and local leisure.
Buyers should note the plot is small and the stone-built walls are likely uninsulated (typical of the build period); minor updating or insulation work could improve thermal performance and long-term running costs. Overall this is a solid period home with character, convenient parking and good scope to tailor to a family’s needs.
3 bedroom semi-detached house for sale in Rainscar View, Kirkgate, Settle, North Yorkshire, BD24 — £260,000 • 3 bed • 2 bath • 785 ft²
3 bedroom semi-detached house for sale in Church Street, Settle, North Yorkshire, BD24 — £330,000 • 3 bed • 1 bath • 1151 ft²
5 bedroom terraced house for sale in Penyghent View, Settle, North Yorkshire, BD24 — £330,000 • 5 bed • 1 bath • 1827 ft²
3 bedroom terraced house for sale in East View, Settle, North Yorkshire, BD24 — £279,950 • 3 bed • 2 bath • 1301 ft²
3 bedroom semi-detached house for sale in Ingfield Crescent, Settle, North Yorkshire, BD24 — £299,950 • 3 bed • 1 bath • 635 ft²
3 bedroom terraced house for sale in Banks View, Settle, North Yorkshire, BD24 — £280,000 • 3 bed • 1 bath • 1621 ft²










































































