Allocated parking and 0.6 mile to Newbury station for easy commuting.
Chain-free leasehold apartment with c.114 years remaining
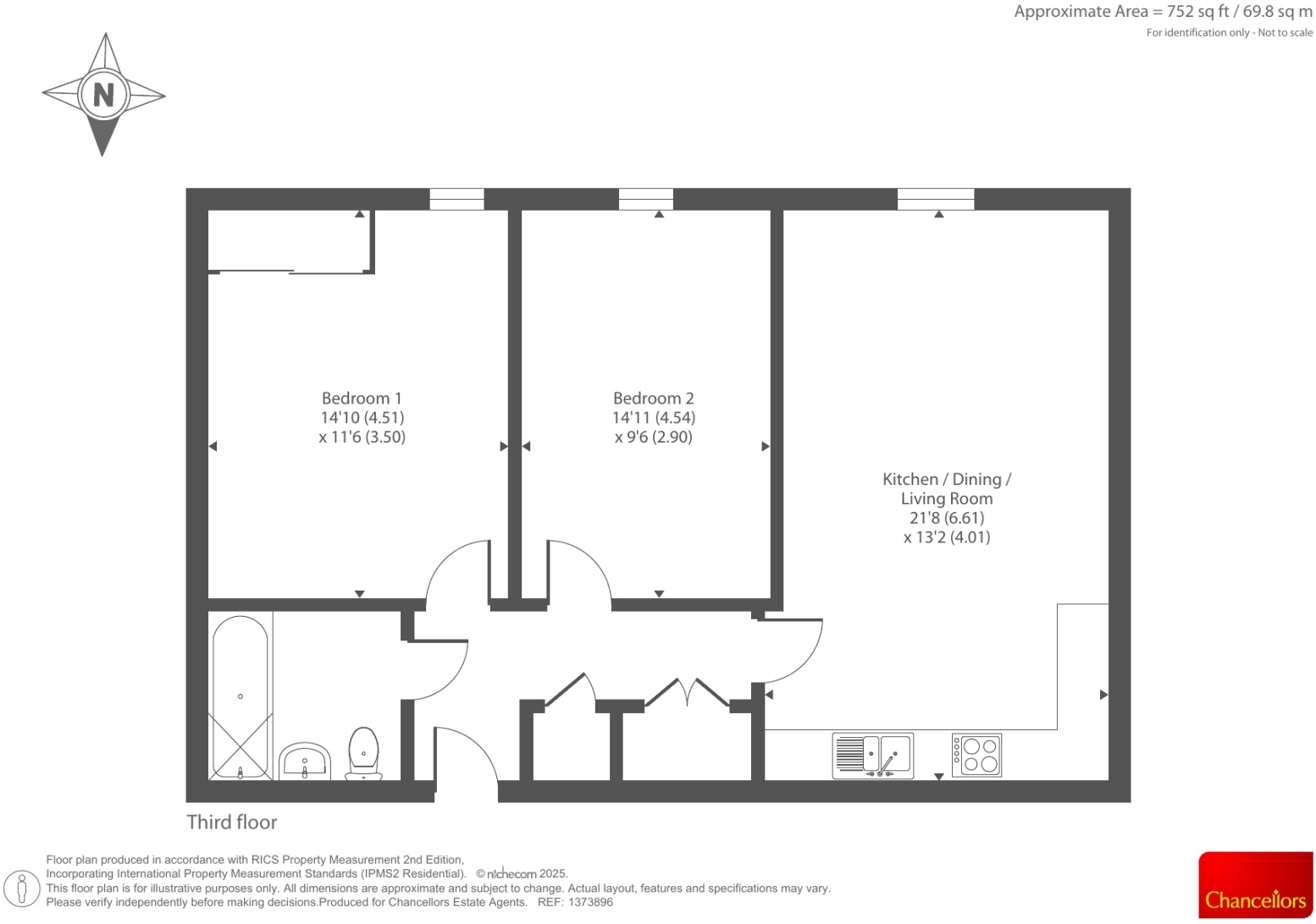
This chain-free, leasehold apartment sits in the heart of Newbury, a short 0.6-mile walk from the train station and surrounded by high-street amenities. The open-plan living area and contemporary kitchen create a light, functional living space suited to first-time buyers or commuters. Two double bedrooms and a well-sized bathroom complete the layout across approximately 752 sq ft.
Practical benefits include allocated off-street parking, communal entrance, and an average council-tax band. The long lease (about 114 years remaining) provides security for mortgage lenders and future resale. Broadband speeds are average and mobile signal is excellent, supporting homeworking and streaming.
Buyers should note local crime levels are reported as high for the area, and this town-centre location brings typical urban activity and noise. The property is presented in contemporary style but is an average-sized flat in a low-rise block; any significant alterations will be subject to lease restrictions and building rules. Overall this is a convenient commuter apartment offering straightforward town-centre living with clear pros and cons to weigh up.
2 bedroom flat for sale in Newbury, Berkshire, RG14 — £225,000 • 2 bed • 2 bath • 764 ft²
2 bedroom flat for sale in Newbury, Berkshire, RG14 — £260,000 • 2 bed • 2 bath • 678 ft²
2 bedroom flat for sale in Newbury, Berkshire, RG14 — £220,000 • 2 bed • 2 bath • 753 ft²
2 bedroom flat for sale in Brunel Court, Old College Road, Newbury, RG14 1TE, RG14 — £239,995 • 2 bed • 2 bath • 698 ft²
2 bedroom flat for sale in Crawford Place, Newbury, RG14 — £175,000 • 2 bed • 1 bath • 466 ft²
1 bedroom flat for sale in Newbury, Berkshire, RG14 — £150,000 • 1 bed • 1 bath • 346 ft²










































































