Reliable income with long-standing tenants and balcony access.
Long-term tenants producing £9,000 gross annually
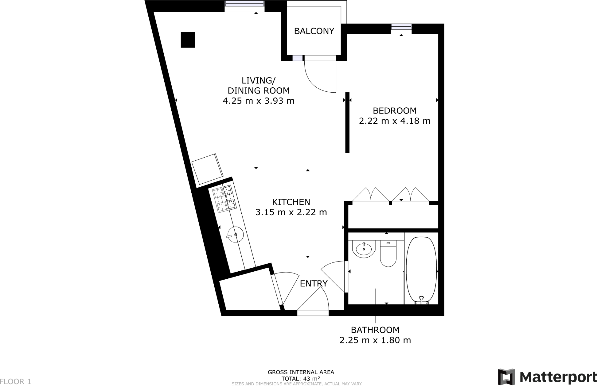
A compact one-bedroom apartment in Manor Mills, LS11, offered with long-standing tenants producing a current gross income of £9,000 per year. The open-plan living space, contemporary finishes and a private balcony present straightforward rental appeal to investors targeting Leeds city returns.
The flat is leasehold, small at approximately 377 sq ft, and has no private garden. Parking is shared/off-street rather than allocated private space. These are practical considerations for future owner-occupiers but are typical for inner-city rental stock and keep running costs and management simple for a portfolio landlord.
This property is best suited to a buy-to-let buyer or portfolio investor seeking an immediate income stream. Tenants are long-term and currently intend to remain, so purchasers should expect a continued let on completion unless they serve notice per the tenancy terms. A Buyers Premium is noted as part of the sale process and will affect the total acquisition cost — review the Let Property Pack for full tenancy and financial details before offer.
1 bedroom flat for sale in The Boulevard, Leeds, West Yorkshire, LS10 — £120,000 • 1 bed • 1 bath • 431 ft²
1 bedroom flat for sale in The Boulevard, Leeds, LS10 — £126,000 • 1 bed • 1 bath • 463 ft²
1 bedroom flat for sale in East Street, Leeds, LS9 — £125,000 • 1 bed • 1 bath • 581 ft²
1 bedroom apartment for sale in Wharf Approach, Leeds, LS1 — £171,500 • 1 bed • 1 bath • 559 ft²
2 bedroom flat for sale in Gotts Road, Leeds, LS12 — £142,000 • 2 bed • 1 bath • 646 ft²
1 bedroom flat for sale in City Walk, Leeds, West Yorkshire, LS11 — £145,000 • 1 bed • 1 bath • 431 ft²














































































