Auction opportunity for hands-on buyers seeking value and scope to add equity.
Three bedrooms with through reception and dining area
Vacant freehold — completion within 42 days after auction
Requires full modernisation; updates to fixtures and finishes likely
Driveway, rear garage and a decent-sized garden
EPC rating E; double glazing present (install date unknown)
Sold at public auction on 23 Oct 2025; no pre-auction offers
Area records above-average crime; consider impact on lettability
Guide price £69,000; additional auction administration fee applies
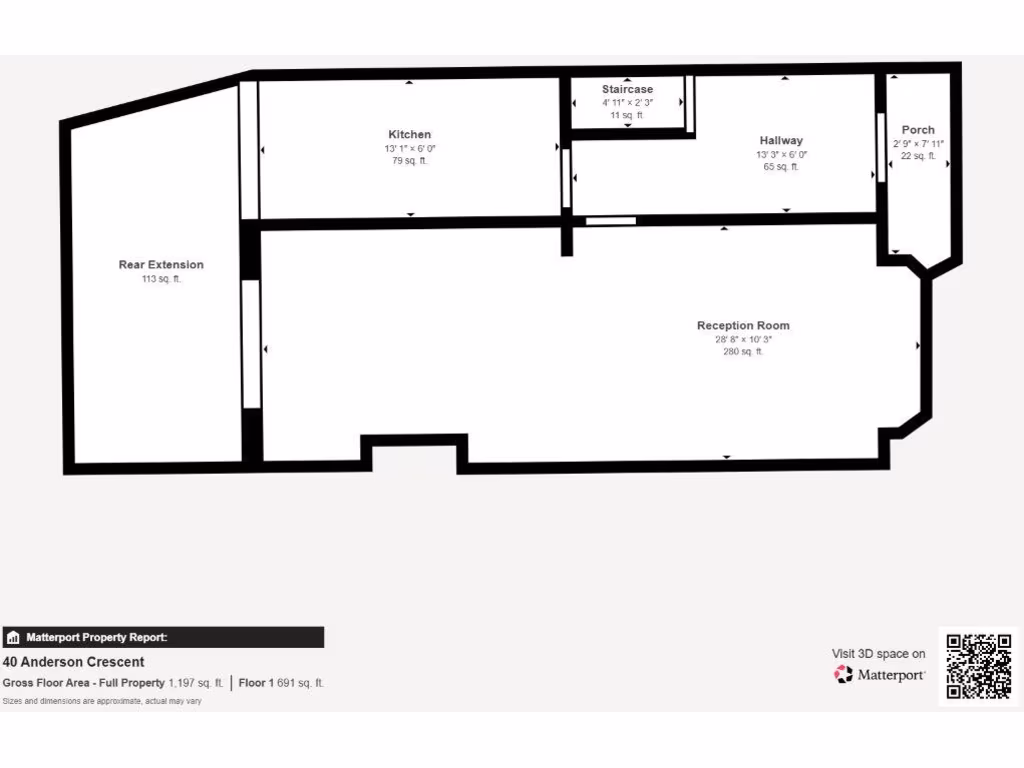
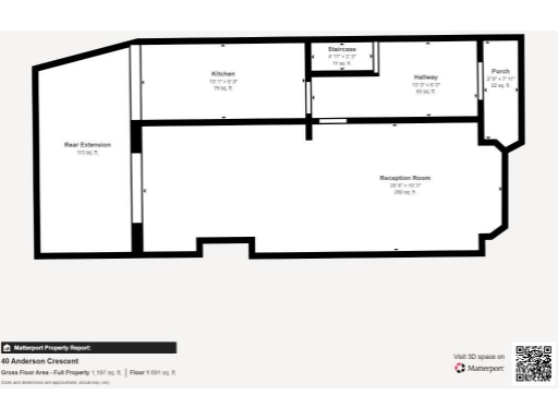
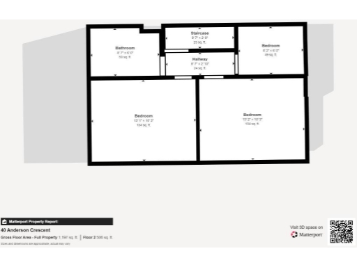
A vacant freehold three-bedroom semi detached house offered for sale by public auction — suitable for investors or DIY buyers seeking value in Great Barr. The property sits back from the road with a driveway, rear garage and a decent garden, and retains gas central heating and UPVC double glazing. It extends to around 1,197 sq ft and dates from the 1950s–60s, offering straightforward layout: porch, through reception with dining area, kitchen with rear lean-to, three first-floor bedrooms and a bathroom.
The house requires modernisation throughout; buyers should expect refurbishment works to update kitchens, bathrooms, electrics and decorative finishes. Energy Performance is rated E. There is no flooding risk but the area records above-average crime levels, which may affect lettability or resale considerations. Completion is expected within 42 days of the auction, and the sale is subject to auction conditions and an administration fee payable on the fall of the gavel.
For an investor this offers a clear value play: vacant possession, decent plot with garage and parking, and potential to increase value through sensible refurbishment. For an owner-occupier prepared to renovate, it provides a family layout close to local schools and amenities. Viewings are scheduled in the two weeks before auction; properties at auction are sold as seen, so inspect the legal pack and arrange surveys before bidding.
3 bedroom semi-detached house for sale in 292 Rocky Lane, Great Barr, Birmingham, B42 1NQ, B42 — £50,000 • 3 bed • 1 bath • 945 ft²
3 bedroom semi-detached house for sale in 390 Witton Lodge Road, Erdington, Birmingham, B23 5LJ, B23 — £39,000 • 3 bed • 1 bath • 1055 ft²
3 bedroom terraced house for sale in 72 Nineacres Drive, Fordbridge, Birmingham, B37 5DD, B37 — £59,000 • 3 bed • 1 bath • 819 ft²
3 bedroom semi-detached house for sale in 51 Tansley Road, Great Barr, Birmingham, B44 0DJ, B44 — £49,000 • 3 bed • 1 bath • 894 ft²
2 bedroom terraced house for sale in 87 Rosary Road, Erdington, Birmingham, West Midlands, B23 7RD, B23 — £95,000 • 2 bed • 1 bath • 975 ft²
3 bedroom semi-detached house for sale in 12 Central Drive, Walsall, WS3 2QQ, WS3 — £125,000 • 3 bed • 1 bath • 1136 ft²






















































































































