Sizeable freehold site with redevelopment upside close to Brixton transport links.
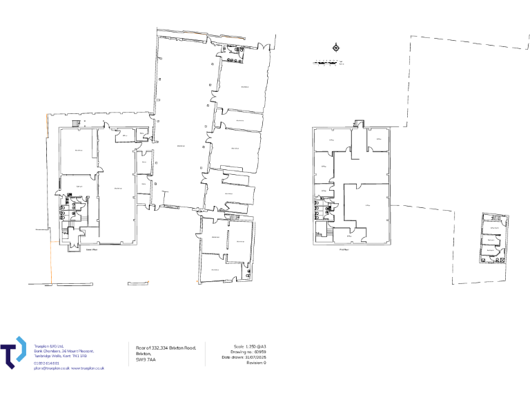
Freehold industrial site of 13,870 sq ft across three adjoining units
0.36 acre plot with on-site parking for several vehicles
B2/B8 use class; one unit provides offices above workshop space
0.5 miles to Brixton Station; strong local transport links
Development potential subject to planning; conversion possible
EPC rating: G — significant energy upgrades likely required
Area is very deprived but undergoing local industrial regeneration
Owner-occupied currently; vacant possession timing may vary
This substantial end-terrace industrial site extends to 13,870 sq ft across three adjoining units on a 0.36-acre plot. Currently owner-occupied by a glass specialist, the buildings are arranged with large ground-floor workshop/warehouse space and a two-storey unit offering offices and meeting rooms above. Classified B2/B8, the site is freehold and offers immediate operational use or longer-term redevelopment potential (subject to planning).
Situated 0.5 miles from Brixton Station and close to Stockwell and Oval, the location delivers excellent transport links for staff and logistics. The surrounding micro-market is an evolving industrial and mixed-use area with recent local regeneration activity, making the site attractive to occupiers, owner-occupiers or developers targeting small-to-medium urban schemes.
Buyers should note the property’s EPC rating of G and that the buildings reflect practical industrial construction with serviceable but dated elements; upgrades will be required for modern occupier standards or residential/commercial conversion. The area shows high local deprivation alongside strong rental and redevelopment demand—this presents both risk and opportunity. Any redevelopment plans will be subject to planning consent.
Practical features include on-site parking for several vehicles, mains gas heating with boiler and radiators, water and electricity services, and excellent mobile and broadband connectivity. This is a clear opportunity for an investor or developer wanting a sizeable London industrial holding with immediate income potential and future upside through value-adding refurbishment or change of use (STP).
Warehouse for sale in The Works, 19 East Place, West Norwood, London, SE27 9JW, SE27 — £1,400,000 • 1 bed • 1 bath • 3622 ft²
Warehouse for sale in The Works & Carlew House, 19 & 21 East Place, West Norwood, London, SE27 9JW, SE27 — £4,000,000 • 1 bed • 1 bath • 10379 ft²
Residential development for sale in RECEIVERSHIP SALE - 34 Acre Lane, Brixton, London, SW2 5SG, SW2 — £2,700,000 • 1 bed • 1 bath • 6082 ft²
Warehouse for sale in Carlew House, 21 East Place, West Norwood, London, SE27 9JW, SE27 — £2,600,000 • 1 bed • 1 bath • 6757 ft²
Warehouse for sale in 16 Waterside Way, London, SW17 0HB, SW17 — POA • 1 bed • 1 bath • 22103 ft²
Light industrial facility for sale in Hither Green Test Station, 42-44 Ennersdale Rd, London, SE13 6JD, SE13 — POA • 1 bed • 1 bath • 1722 ft²


















































































































































