Exclusive gated new-build on a generous plot with countryside views.
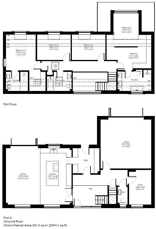
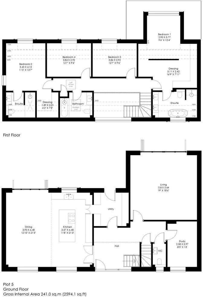
Approximately 2,594 sq ft across two floors, four bedrooms, three bathrooms
Plot 5 at Hilders Farm is a newly built, high-specification detached home arranged over two floors with approximately 2,594 sq ft of living space. The ground floor offers expansive open-plan kitchen/family/dining space, a generous living room with bifold doors to the landscaped garden, a utility room and study. Upstairs, the layout centres on two impressive bedroom suites plus two further bedrooms and a family bathroom — ideal for families who need flexible living and generous storage.
Set within an exclusive gated development of 11 homes on large plots, the location gives far-reaching views towards the North Downs and easy access to Greenbelt countryside. Edenbridge and nearby Oxted provide shops, schools and rail links into London; Gatwick is about 25 minutes by car. The area is very affluent with strong mobile and broadband connectivity and potential eligibility for Kent grammar schools.
This property is currently under construction and sold off-plan; the listed images are CGI representations. There is scope to increase plot size and to purchase additional land, which will appeal to buyers seeking longer-term outdoor potential. Private off-street parking for two to three cars is provided.
Important practical notes: the home is a new build so final finishes will reflect the developer’s specification and some external landscaping remains to be completed. Tenure details are not specified and should be confirmed. Because some images are illustrative and completion is in progress, internal fittings and timings may vary.
5 bedroom detached house for sale in Plot 9 - Hilders Farm, Edenbridge, TN8 — £1,680,000 • 5 bed • 4 bath • 2784 ft²
3 bedroom semi-detached house for sale in Plot 1 - Hilders Farm, Edenbridge, TN8 — £900,000 • 3 bed • 2 bath • 1678 ft²
4 bedroom detached house for sale in Hilders Lane, Kent, TN8 — £1,390,000 • 4 bed • 3 bath • 2480 ft²
4 bedroom detached house for sale in Hilders Lane, Kent, TN8 — £1,800,000 • 4 bed • 3 bath • 3200 ft²
5 bedroom detached house for sale in Hilders Lane, Kent, TN8 — £1,680,000 • 5 bed • 4 bath • 3000 ft²
5 bedroom detached house for sale in Hartfield Road, Cowden, TN8 — £4,000,000 • 5 bed • 5 bath • 6469 ft²


























































