Private parking, communal gardens and manageable factoring for practical buyers.
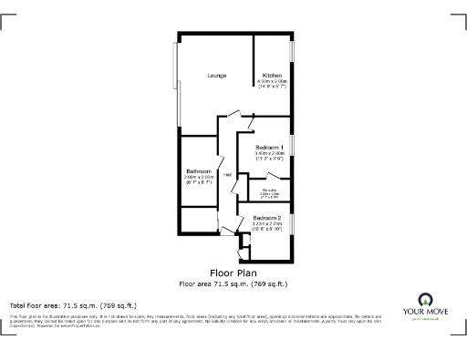
Ground-floor two-bedroom flat with lift access and entry phone system
This ground-floor two-bedroom flat occupies a modern, lift-served block about three miles from Edinburgh city centre. The apartment offers a bright open-plan living/dining room with a well-appointed kitchen, principal bedroom with built-in wardrobes and en-suite, plus a further double bedroom and separate bathroom. Off-street private parking and maintained communal gardens add practical appeal.
Practical running costs are clear: gas central heating and double glazing help with efficiency, and an annual factoring charge of approximately £800 covers buildings insurance and communal maintenance. Council tax is above average for the area and should be factored into affordability calculations.
The property suits a first-time buyer or buy-to-let investor seeking a straightforward, low-maintenance home close to shops, transport links, parks and schools. Note the immediate neighbourhood is classified as very deprived, which may affect long-term resale and rental demand; buyers should weigh this against the property’s features and competitive price.
Internally the flat is in a modern, neutral style with laminate flooring and standard ceiling heights. Any purchaser should verify services and appliances independently, and consider cosmetic updates if a more bespoke interior is desired.
2 bedroom flat for sale in East Pilton Farm Crescent, Edinburgh, Midlothian, EH5 — £160,000 • 2 bed • 2 bath • 644 ft²
2 bedroom flat for sale in East Pilton Farm Crescent, Edinburgh, Midlothian, EH5 — £160,000 • 2 bed • 2 bath • 644 ft²
2 bedroom apartment for sale in Flat 3, 10 East Pilton Farm Crescent, Fettes, Edinburgh, EH5 2GH, EH5 — £185,000 • 2 bed • 2 bath • 926 ft²
2 bedroom apartment for sale in Flat 4, 1 East Pilton Farm Crescent, Fettes, Edinburgh, EH5 2GF, EH5 — £165,000 • 2 bed • 2 bath • 812 ft²
2 bedroom flat for sale in 3/8 North Werber Road, Edinburgh, EH4 1TA, EH4 — £295,000 • 2 bed • 2 bath • 904 ft²
2 bedroom flat for sale in East Pilton Farm Crescent, Edinburgh, Midlothian, EH5 — £180,000 • 2 bed • 2 bath • 644 ft²






















































