Chain-free, newly refurbished semi with garage, driveway and good-sized garden — ideal for first-time buyers..
- Sold with no onward chain
- Newly refurbished: kitchen, bathroom, new flooring
- Driveway parking plus single garage
- Good-sized private rear garden
- Convenient access to A40 / M40 for commuters
- Two bedrooms, one bathroom (limited for growing families)
- Average broadband speeds; suitable for typical home use
- Built early 1990s timber-frame style (assumed)
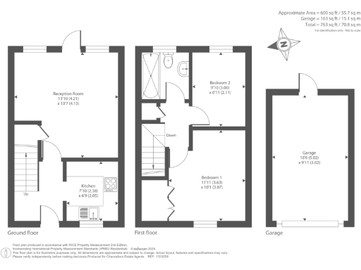
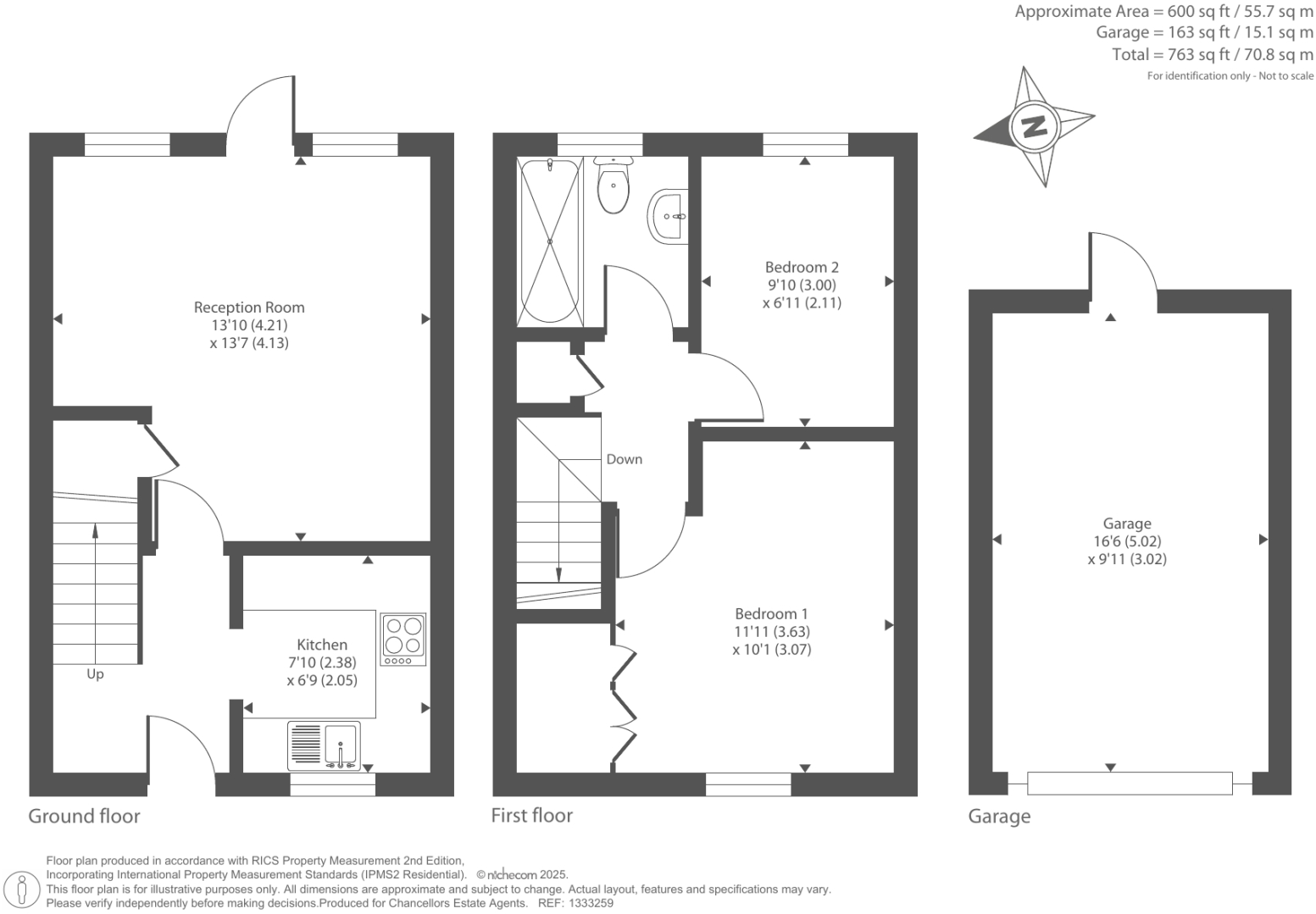
A tidy, chain-free two-bedroom semi in Wheatley that’s been newly refurbished throughout, ready for immediate occupation. The home features a bright lounge/diner opening to a good-sized private rear garden, plus driveway parking and a single garage — practical benefits for busy households and commuters. Recent works include a refitted kitchen, new bathroom and new flooring, so short-term maintenance is likely minimal.
Positioned on a popular side road with convenient access to the A40/M40, the house suits first-time buyers or small families who value transport links and local schools. Local facilities include pubs, sports and leisure amenities, and several well-rated primary and secondary schools within easy reach. The area is affluent with low crime and excellent mobile signal.
The property is an average-sized (763 sq ft) traditional layout from the early 1990s, with gas central heating and double glazing. There is no flood risk and council tax is affordable. Broadband speeds are average, which is fine for everyday use but worth noting for heavy home-working households. Overall this is a practical, move-in-ready home with sensible running costs and good local connections.
3 bedroom semi-detached house for sale in Simons Close, Wheatley, OX33 — £425,000 • 3 bed • 1 bath • 1209 ft²
3 bedroom semi-detached house for sale in Elton Crescent, Wheatley, Oxford, Oxfordshire, OX33 — £420,000 • 3 bed • 1 bath • 880 ft²
2 bedroom terraced house for sale in Kelham Hall Drive, Wheatley, OX33 — £325,000 • 2 bed • 1 bath • 567 ft²
3 bedroom terraced house for sale in Wheatley, Oxford, OX33 — £325,000 • 3 bed • 1 bath • 935 ft²
3 bedroom semi-detached house for sale in London Road, Wheatley, Oxfordshire, OX33 — £550,000 • 3 bed • 2 bath • 1290 ft²
4 bedroom semi-detached house for sale in Hillary Way, Wheatley, OX33 — £575,000 • 4 bed • 2 bath • 2051 ft²


















































































