Move-in ready family home with large garden and excellent school links.
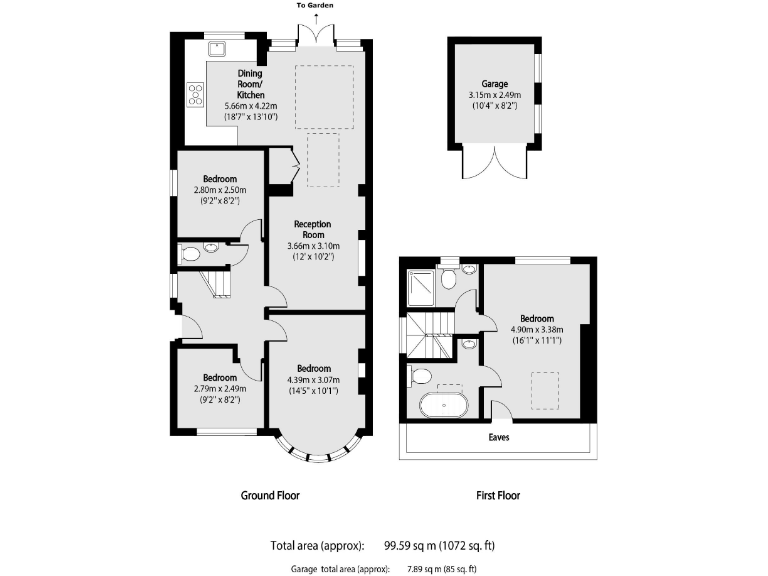
4 double bedrooms including loft conversion
South-facing garden with patio and established planting
Full rear and loft extension; large open-plan kitchen/diner
Two bathrooms plus downstairs WC; presented in excellent condition
Garage and off-street parking
Freehold; semi-detached bungalow built 1930–1949
Solid brick walls assumed uninsulated — consider energy improvements
Very high local crime rate; council tax above average
This extended four-bedroom bungalow offers flexible family living on a popular residential road in Greenford. The rear and loft extensions create a spacious open-plan kitchen/dining area, two bathrooms plus a downstairs WC, and a bright living room with bay window. A south-facing garden and single garage add useful outdoor and parking space.
The property is presented in excellent condition with contemporary finishes throughout, making it move-in ready for families seeking nearby schools and local amenities. William Perkin Church of England High School and The Cardinal Wiseman are both within easy reach and are highly rated. Local shops, cafés and transport links are moments away on Greenford Broadway.
Notable practical points: the house is a freehold semi-detached bungalow constructed around 1930–1949 with assumed solid-brick walls (no known cavity insulation). Council Tax sits above average, and the area records a very high local crime rate — both factors buyers should consider. Buyers may also wish to check the dates and guarantees for glazing, heating and any loft works.
Overall, this home suits families who want flexible living space and good school access without immediate renovation work, but who accept higher local crime levels and the typical maintenance considerations of an older solid-wall home.
4 bedroom semi-detached bungalow for sale in Stanhope Park Road, Greenford, UB6 — £599,950 • 4 bed • 2 bath • 1159 ft²
2 bedroom semi-detached bungalow for sale in Stanhope Park Road, Greenford, UB6 — £500,000 • 2 bed • 1 bath • 506 ft²
3 bedroom bungalow for sale in Marnham Crescent, Greenford, UB6 — £585,000 • 3 bed • 1 bath • 850 ft²
4 bedroom detached bungalow for sale in St. Marys Avenue Central, Norwood Green, UB2 — £729,950 • 4 bed • 2 bath • 1712 ft²
4 bedroom bungalow for sale in Micawber Avenue, Uxbridge, UB8 — £675,000 • 4 bed • 2 bath • 1188 ft²
4 bedroom semi-detached house for sale in Daryngton Drive, Greenford, Middlesex, UB6 — £745,000 • 4 bed • 2 bath • 1629 ft²


































