Chain-free three-bedroom bungalow with large garage and garden, ripe for renovation..
- Three bedrooms plus usable loft area for storage or conversion
- Requires full modernisation and updating throughout
- Larger-than-average garage with attached studio/workshop
- Driveway parking and decent private rear garden with patio
- Double glazing installed before 2002, may need replacement
- Cavity walls assumed uninsulated — potential energy improvements needed
- Vacant and chain-free for a straightforward purchase
- Close to Good-rated schools, shops and regular bus routes
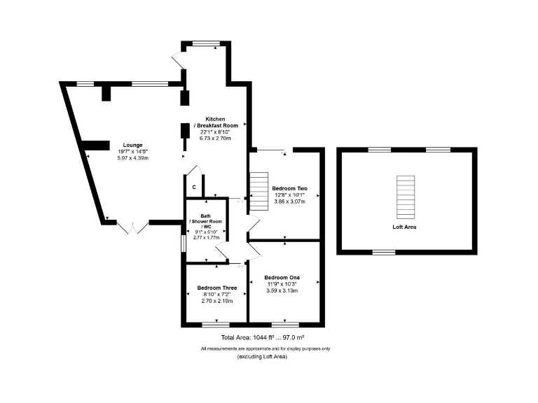
Tucked away in Greenfield Close, this three-bedroom semi-detached bungalow offers about 1,044 sq ft of flexible living space with genuine scope to modernise. The layout includes an open lounge/dining room, a kitchen/breakfast room, separate study area, bath/shower room and a usable loft — a strong canvas for a growing family or downsizers who want ground-floor living with extra space.
Outside, the property benefits from a decent rear garden with brick-paved patio, front sun terrace, driveway and a larger-than-average garage with an attached artist’s studio/workshop. Practical features include double glazing (installed before 2002), mains gas central heating and a generous plot in a quiet close close to Patcham Village amenities, schools rated Good, and regular bus routes into central Brighton.
Important considerations: the bungalow needs renovation throughout, with cavity walls assumed to have no insulation and older glazing and services that may require upgrading. Vacant and chain-free, it’s an opportunity for buyers prepared to invest in improvements to create a comfortable, modern home in a sought-after, very affluent neighbourhood with excellent transport links.
3 bedroom semi-detached house for sale in Bengairn Avenue, BN1 — £400,000 • 3 bed • 1 bath • 909 ft²
3 bedroom bungalow for sale in Bengairn Avenue, Brighton, East Sussex, BN1 — £410,000 • 3 bed • 1 bath • 1255 ft²
3 bedroom semi-detached bungalow for sale in Ladies Mile Road, Brighton, BN1 — £500,000 • 3 bed • 1 bath • 759 ft²
4 bedroom semi-detached bungalow for sale in Mackie Avenue, Patcham, Brighton, East Sussex, BN1 — £475,000 • 4 bed • 2 bath • 1023 ft²
2 bedroom semi-detached bungalow for sale in Heston Avenue, Patcham, Brighton, BN1 — £425,000 • 2 bed • 1 bath • 699 ft²
3 bedroom detached bungalow for sale in Highview Avenue North, Patcham, Brighton, BN1 — £650,000 • 3 bed • 1 bath • 1152 ft²






























































