**Standout Features:**
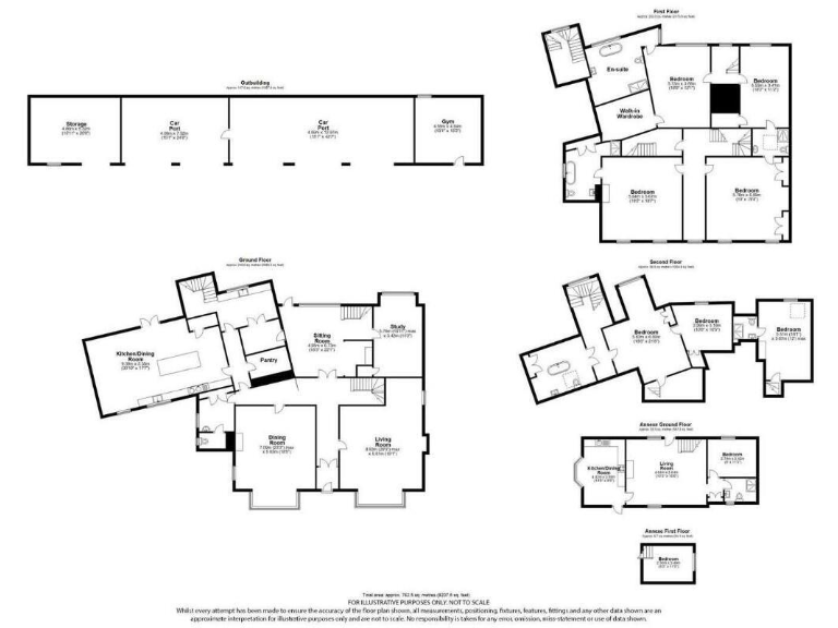
- Elegant Grade II listed Georgian home dating back to 1600
- 7 spacious bedrooms and 5 bathrooms, plus a 2-bedroom annexe
- Expansive 3.5 acres of landscaped grounds
- Multiple reception rooms and a family-sized kitchen
- Additional outbuildings include car ports and a gym
- Low crime area in a peaceful countryside setting
- Excellent mobile signal and fast broadband speeds
**Potential Concerns:**
- Listed status may impose restrictions on renovations
- Requires upkeep befitting its age and listed condition
This stunning detached Georgian residence offers an unparalleled opportunity for those seeking charm, space, and a slice of the countryside. With expansive living areas including four grand reception rooms and a generous kitchen, the property's three floors accommodate large families or multi-generational living, ensuring comfort and privacy for all. The beautifully maintained grounds provide a serene retreat with mature trees, expansive lawns, and the added bonus of a detached 2-bedroom annexe, perfect for guests or as a rental space.
Set in a prosperous countryside village renowned for its low crime rate and close-knit community, this home not only promises a peaceful lifestyle but also boasts excellent amenities like nearby schools with outstanding ratings and leisure opportunities in the surrounding area. While the property's listed status may present some renovation challenges, the historical character and potential for future enhancements make it a coveted investment for discerning buyers. Act quickly—properties of this caliber don't stay on the market for long!
5 bedroom detached house for sale in Church Road, Great Hallingbury, Herts, BISHOP'S STORTFORD, CM22 — £1,800,000 • 5 bed • 4 bath • 7496 ft²
7 bedroom detached house for sale in Bayford Green, Hertford, SG13 — £3,250,000 • 7 bed • 3 bath • 4130 ft²
5 bedroom detached house for sale in Dassels, Braughing, SG11 — £1,299,950 • 5 bed • 2 bath • 2801 ft²
Residential development for sale in Lower Road, Croydon, SG8 — £1,500,000 • 1 bed • 1 bath • 2284 ft²
5 bedroom detached house for sale in Exceptional Village Home - Little Hadham, SG11 — £2,000,000 • 5 bed • 3 bath • 6004 ft²
5 bedroom detached house for sale in Church Road, Great Hallingbury, Bishop's Stortford, CM22 — £1,800,000 • 5 bed • 4 bath • 7500 ft²






































































































































































































