**Standout Features:**
- Architecturally designed eco-homes in a gated community
- Three spacious bedrooms, including a principal suite with en-suite and balcony
- Dedicated home office perfect for remote work
- High-spec German kitchens with premium appliances
- Private garden with decked patio and efficient indoor-outdoor flow
- Sustainable features like solar panels, EV charging points, and wildlife-friendly landscaping
- Allocated off-street parking in a low-crime, affluent neighbourhood
**Summary Description:**
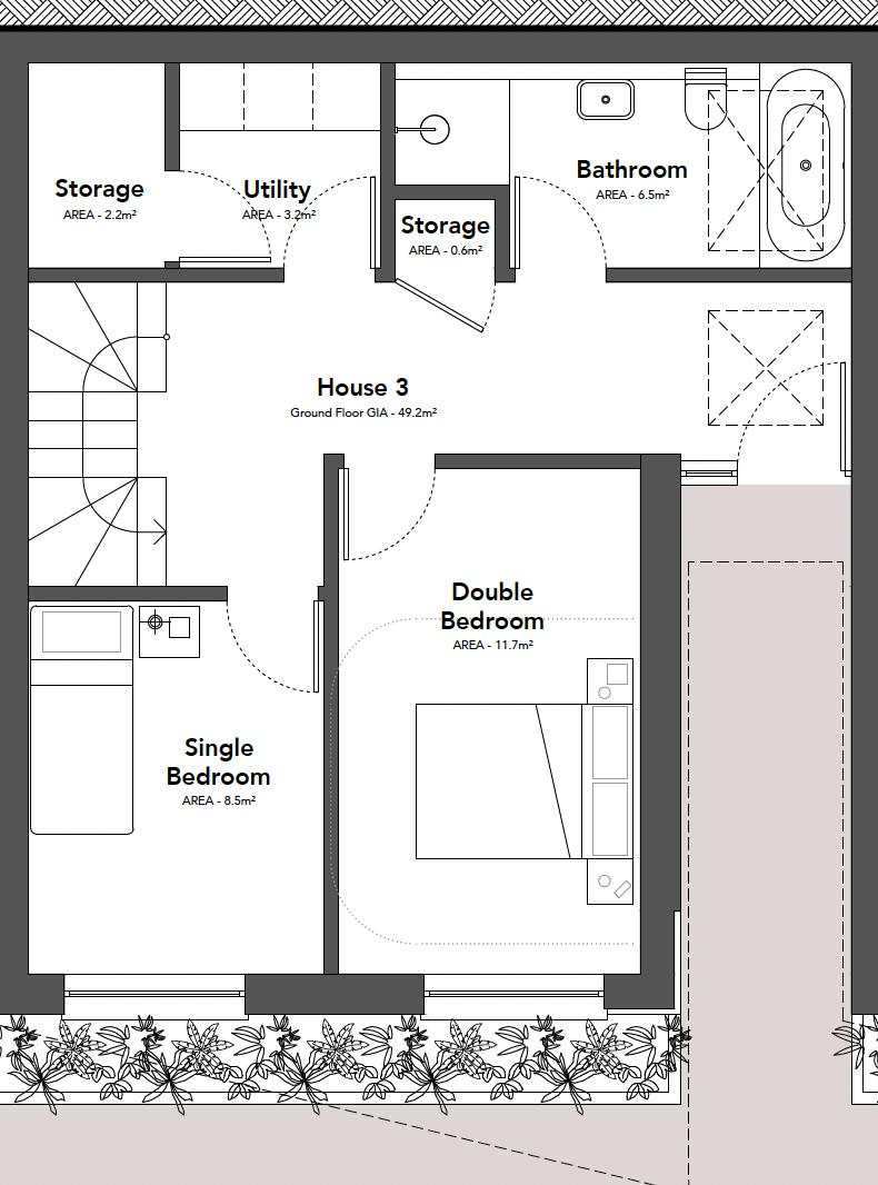
Discover a unique opportunity to own a three-bedroom eco-home in the exclusive gated development of Woodingdean. This modern townhouse boasts a striking architectural design, integrating sustainability with upscale living. The interior showcases a spacious open-plan living area infused with natural light, seamlessly connecting to a private garden perfect for outdoor gatherings. The high-spec German kitchen invites culinary creativity, while the dedicated home office caters to your professional needs—ideal for today’s work-from-home lifestyle. Relax in the principal suite with its stylish en-suite and enjoy the tranquil views from your balcony.
Located in a peaceful woodland setting, these homes offer a cohesive blend of comfort and environmental consciousness, with features such as solar panels and EV charging points enhancing their contemporary appeal. The included communal grounds promote a sense of community while ensuring spacious living. With easy access to Brighton’s vibrant amenities and a scenic backdrop of the English countryside, this property offers a rare balance of serenity and urban richness. Seize this opportunity to invest in a sustainable future; homes of this caliber won’t be available for long!
4 bedroom semi-detached house for sale in Crescent Drive North, Brighton, Brighton, BN2 — £750,000 • 4 bed • 2 bath • 1650 ft²
5 bedroom detached house for sale in The Ridgway, Brighton, BN2 — £850,000 • 5 bed • 3 bath • 1477 ft²
4 bedroom semi-detached house for sale in Crescent Drive North, Brighton, BN2 — £750,000 • 4 bed • 2 bath • 1650 ft²
3 bedroom detached house for sale in The Palmeira, Brighton, BN2 — £1,150,000 • 3 bed • 3 bath • 1266 ft²
4 bedroom detached house for sale in Woodland Drive, Hove, BN3 — £1,400,000 • 4 bed • 3 bath • 2823 ft²
3 bedroom semi-detached house for sale in Preston Park Avenue, Brighton, BN1 — £1,500,000 • 3 bed • 3 bath • 1776 ft²






















































