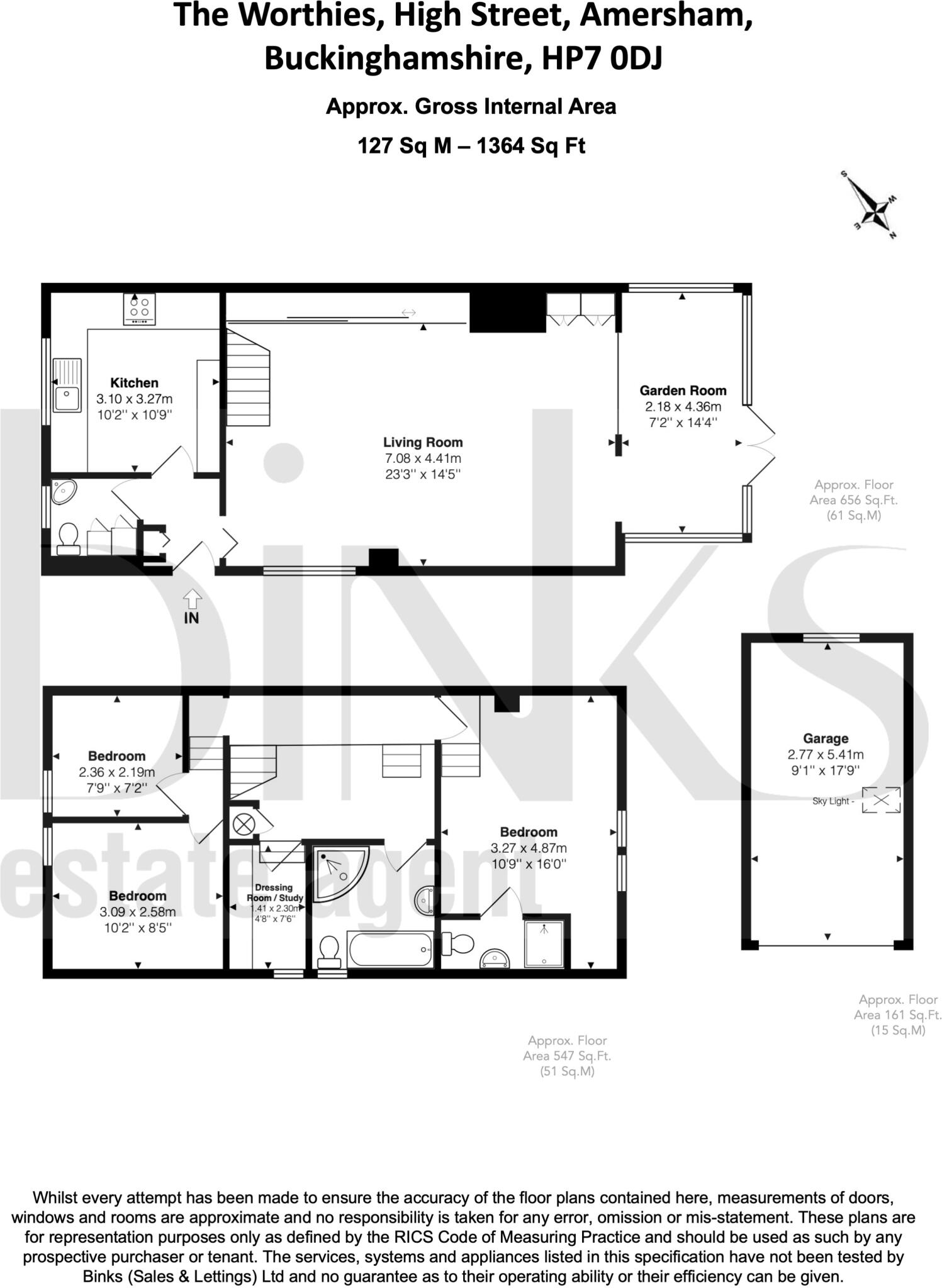
Grade II listed three-bedroom barn conversion in central Old Amersham, chain free and garage included..
- Grade II listed barn conversion with strong historic character
- Large double-height living/dining area and bright garden room
- Modern fitted kitchen with integrated appliances
- Principal bedroom with vaulted ceiling and en-suite shower
- Detached garage and communal visitors’ parking
- Small enclosed courtyard garden, low-maintenance only
- EPC D; solid brick walls likely without insulation
- Listing status may restrict alterations and require permissions
Tucked down a private road in the heart of Old Amersham, this Grade II listed barn conversion blends genuine period character with practical modern living. Vaulted ceilings, exposed timber beams and a double-height living/dining area create dramatic, light-filled spaces, while a bright garden room provides a calm link to the secluded courtyard garden.
The kitchen is fitted with integrated appliances and flows into generous reception space ideal for family life or entertaining. The principal bedroom benefits from an en-suite shower room and vaulted ceiling; two further bedrooms, a dressing room/study and a family bathroom complete the versatile layout. A detached garage, visitors’ parking and gated access add welcome practicality in this central location.
Buyers should note the property is Grade II listed, which will restrict external and some internal alterations and may complicate certain upgrades. The house is solid-brick and likely lacks cavity insulation; historic construction and double glazing installed before 2002 mean energy performance, although acceptable, is not best-in-class (EPC D). The courtyard garden is private but small, suiting low-maintenance outdoor living rather than large-scale landscaping.
Offered chain free and positioned within walking distance of boutique shops, cafés, pubs and highly regarded schools, this house will suit purchasers seeking a characterful, centrally located family home or professional couple wanting substantial living space with minimal outdoor upkeep. Service charges are modest and there is a detached garage for secure parking.
2 bedroom link detached house for sale in High Street, Amersham, HP7 — £500,000 • 2 bed • 1 bath • 620 ft²
3 bedroom end of terrace house for sale in High Street, Amersham, Buckinghamshire, HP7 0DS, HP7 — £900,000 • 3 bed • 1 bath • 1300 ft²
3 bedroom cottage for sale in The Broadway, Amersham, HP7 — £835,000 • 3 bed • 2 bath • 1000 ft²
2 bedroom barn conversion for sale in Seeleys Court, Orchard Close, Beaconsfield, Buckinghamshire, HP9 — £650,000 • 2 bed • 2 bath • 752 ft²
4 bedroom barn conversion for sale in High Street, Whitchurch, HP22 — £795,000 • 4 bed • 2 bath • 1625 ft²
2 bedroom end of terrace house for sale in High Street, Amersham, Buckinghamshire, HP7 — £599,950 • 2 bed • 1 bath • 845 ft²


































































































































