Spacious single‑level living with a private garden and garage close to Bearsted village.
Detached chalet bungalow on a large, private plot
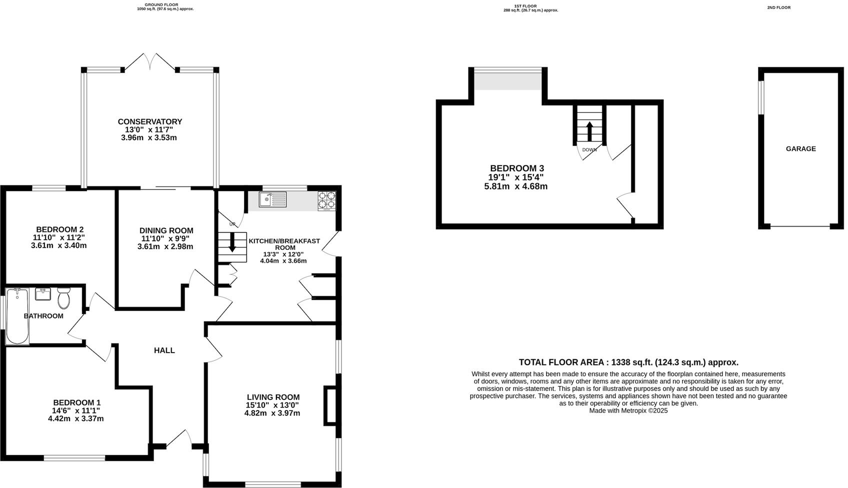
Set back on a large, mature plot in Weavering, this detached chalet bungalow delivers peaceful single‑storey living with the flexibility of a first‑floor master. The house sits on a private, well‑planted corner plot with an established front lawn and a deep, not‑overlooked rear garden — ideal for quiet outdoor living and light gardening. A garage and driveway provide practical parking and storage.
Inside, the layout offers comfortable living for downsizers: a bright lounge, separate dining room, conservatory/garden room and three bedrooms. The property totals approximately 1,338 sq ft and includes useful eaves storage in the upper bedroom. There is no flooding risk and the freehold tenure gives straightforward ownership for those seeking a long‑term single‑level home with some upstairs flexibility.
The bungalow is presented in a traditionally solid mid‑20th century style but will benefit from internal modernisation to reach contemporary standards. There is scope for tasteful updating or modest extension (subject to planning) to refresh kitchens, bathroom and finishes to personal taste. Broadband speeds are average; mobile signal is excellent. Council tax is moderate.
Location is a key strength: peaceful suburbia with countryside close by, easy walking access to Bearsted amenities and good schools nearby. Commuters have rail links from Bearsted and easy access to the M20. This property will appeal to buyers seeking a private, low‑maintenance plot with potential to update rather than a move‑in‑ready renovation-free home.
2 bedroom detached bungalow for sale in Orchard Drive, Weavering, Maidstone, ME14 — £350,000 • 2 bed • 1 bath • 890 ft²
3 bedroom bungalow for sale in Shaftesbury Drive, Maidstone, Kent, ME16 — £375,000 • 3 bed • 1 bath • 981 ft²
4 bedroom detached house for sale in Manor Rise, Bearsted, Maidstone, ME14 — £750,000 • 4 bed • 2 bath • 1740 ft²
4 bedroom detached house for sale in Manor Rise, Bearsted, ME14 — £675,000 • 4 bed • 2 bath • 1356 ft²
2 bedroom bungalow for sale in Crompton Gardens, Maidstone, Kent, ME15 — £375,000 • 2 bed • 2 bath • 872 ft²
3 bedroom semi-detached bungalow for sale in Bramley Crescent, Maidstone, ME15 — £399,500 • 3 bed • 1 bath • 1041 ft²










































































