Modern three-bedroom home with garden and two parking spaces, ideal for family living.
Three-bedroom semi-detached new build with open-plan kitchen/dining area
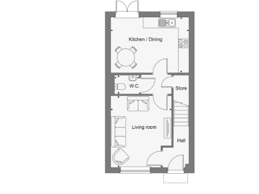
The Charleston is a newly built three-bedroom semi-detached home designed for modern family life in a prosperous, semi-rural setting. The ground floor offers an open-plan kitchen/dining area with French doors to a private rear garden and a separate front living room, creating flexible day-to-day living and good flow for entertaining or family routines.
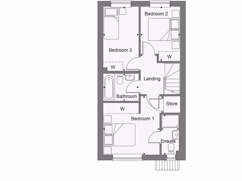
Upstairs, bedroom one includes an ensuite shower and additional storage, accompanied by a further double bedroom, a single bedroom and a separate family bathroom. Practical features include two side-by-side driveway spaces, double-glazed windows and an air-source heat pump for low-carbon heating. A 10-year Premier warranty plus a 2-year builder warranty are included for added peace of mind.
Practical considerations: the development estimates a move-in window of June–August 2026, and broadband speeds in the area are reported as slow — something to confirm if you work from home or rely on fast internet. Council Tax band is not yet published. The property is freehold and sits in an area with very low crime and strong local schools, making it appropriate for families seeking a quieter, well-appointed home in a hamlet-style setting.
3 bedroom semi-detached house for sale in Whitehouse,
Milton Keynes,
MK8 8AB, MK8 — £435,000 • 3 bed • 1 bath
3 bedroom semi-detached house for sale in Sandy Road,
Willington,
MK44 — £400,000 • 3 bed • 1 bath
3 bedroom semi-detached house for sale in Shenley Wood,
Milton Keynes,
Buckinghamshire,
MK5 6LA
, MK5 — £435,000 • 3 bed • 1 bath
3 bedroom semi-detached house for sale in Sandy Road,
Willington,
MK44 — £400,000 • 3 bed • 1 bath
3 bedroom semi-detached house for sale in Shenley Wood,
Milton Keynes,
Buckinghamshire,
MK5 6LA
, MK5 — £435,000 • 3 bed • 1 bath
3 bedroom terraced house for sale in Shenley Wood,
Milton Keynes,
Buckinghamshire,
MK5 6LA
, MK5 — £425,000 • 3 bed • 1 bath














































