**Key Features:**
- **Period Stone and Slate Property:** Formerly a primary school with distinctive architectural charm.
- **Ample Space:** Large grounds provide endless possibilities for gardens and recreation.
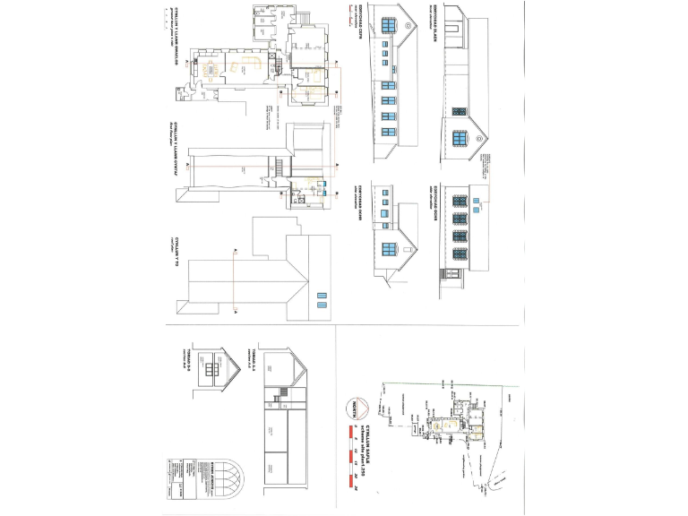
- **Full Planning Permission:** Change of use into a living/working unit (Application Number - A230872).
- **Versatile Accommodation:** Comprises a 3-bedroom living area alongside workshop/office spaces.
- **Access & Utilities:** Located on a council-maintained road with mains electricity, water, and drainage.
- **Low Crime Area:** Enjoy tranquility in a very safe rural community.
Discover the potential of this striking detached property nestled in the serene upper Ystwyth Valley, just 8 miles from Aberystwyth. With planning permission already in place for transforming this substantial stone and slate building into a spacious living/working unit, the possibilities for customization and modernization are endless. The generous grounds invite you to envision vibrant gardens or recreational spaces, while the traditional architecture offers a touch of historical charm.
This unique property is perfect for families seeking a peaceful retreat, investors looking for a fixer-upper with future rental potential, or anyone craving more space in a picturesque rural setting. Although updates and renovations may be needed—particularly with regard to aesthetics and maintenance—the abundant character and the low crime rate in the area ensure a secure and comfortable environment. With fast broadband access and excellent mobile signals, this property balances serene country living with modern connectivity.
Don't miss the opportunity to make this your dream home—properties with such potential and charm don't last long on the market!
4 bedroom smallholding for sale in Llanafan, Aberystwyth, SY23 — £645,000 • 4 bed • 2 bath • 1335 ft²
5 bedroom smallholding for sale in Llanafan , Aberystwyth, SY23 — £489,000 • 5 bed • 2 bath • 2369 ft²
3 bedroom detached house for sale in SY23 — £248,000 • 3 bed • 3 bath • 2507 ft²
4 bedroom detached house for sale in Bontnewydd, Aberystwyth, SY23 — £525,000 • 4 bed • 2 bath • 1349 ft²
3 bedroom link detached house for sale in Bwthyn Y Wawr, Ystumtuen, , Aberystwyth, SY23 — £350,000 • 3 bed • 1 bath • 1246 ft²
4 bedroom detached house for sale in Llanafan, Aberystwyth, Ceredigion, SY23 — £425,000 • 4 bed • 2 bath • 1453 ft²


















































































