Spacious character cottage with annex and large private gardens for country living.
Detached period granite cottage with substantial mature, private gardens
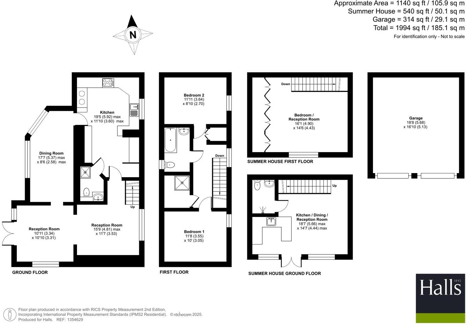
Separate two‑storey converted outbuilding — guest annexe or home office
Private driveway and detached sectional garage; parking for multiple vehicles
Oil‑fired central heating; main fuel is oil (not community supply)
Stone walls likely uninsulated; scope for energy efficiency improvements
Private drainage system and services stated but not tested — checks recommended
Council Tax Band G — described as quite expensive for running costs
Located in a quiet hamlet; limited public transport, rural setting
This detached granite cottage sits quietly in Cound Moor with large, mature gardens and strong privacy — ideal for buyers seeking a rural retreat. The principal house retains period character, multi-fuel stove, and flexible reception rooms that flow to the garden, while a separate two‑storey converted outbuilding offers self‑contained guest accommodation, home office or rental potential.
The accommodation is practical and comfortable: two double bedrooms upstairs, family bathroom, kitchen with Rayburn and utility/WC downstairs, plus a snug and formal sitting/dining rooms. Oil‑fired central heating and double glazing are in place, but some elements (private drainage and services) are untested and the stone walls are assumed uninsulated, so buyers should allow for running and improvement costs.
Externally the plot is a key asset — expansive lawns, mature borders, fruit trees, gazebo with BBQ area, vegetable garden and greenhouse. Vehicular access, private driveway and a detached sectional garage add everyday convenience. The converted outbuilding provides immediate ancillary use or scope to optimise income or long‑term annexe use.
Practical considerations: the property is freehold, in council tax band G and uses oil heating (not connected to a community supply), which may mean higher running costs. The cottage, built before 1900, offers scope for sympathetic updating rather than a turnkey modern finish; buyers seeking contemporary efficiency should budget for improvements such as wall insulation and service checks. Overall this is a characterful rural home with strong garden space and flexible outbuilding potential.
2 bedroom cottage for sale in 4 Wilcott, Nesscliffe, Shrewsbury, SY4 1BJ, SY4 — £395,000 • 2 bed • 1 bath • 1502 ft²
4 bedroom cottage for sale in Hallonsford Cottage, Worfield, Shropshire, WV15 — £900,000 • 4 bed • 3 bath • 3916 ft²
5 bedroom detached house for sale in Great Bolas, Telford, Shropshire, TF6 — £800,000 • 5 bed • 3 bath • 2519 ft²
5 bedroom detached house for sale in Maesbrook, Oswestry., SY10 — £599,950 • 5 bed • 4 bath • 3193 ft²
3 bedroom cottage for sale in Valeswood, Little Ness, Shrewsbury, SY4 — £495,000 • 3 bed • 3 bath • 1400 ft²
4 bedroom detached house for sale in Hillocks Cottage, Shrewsbury, SY5 — £700,000 • 4 bed • 3 bath • 1841 ft²














































































