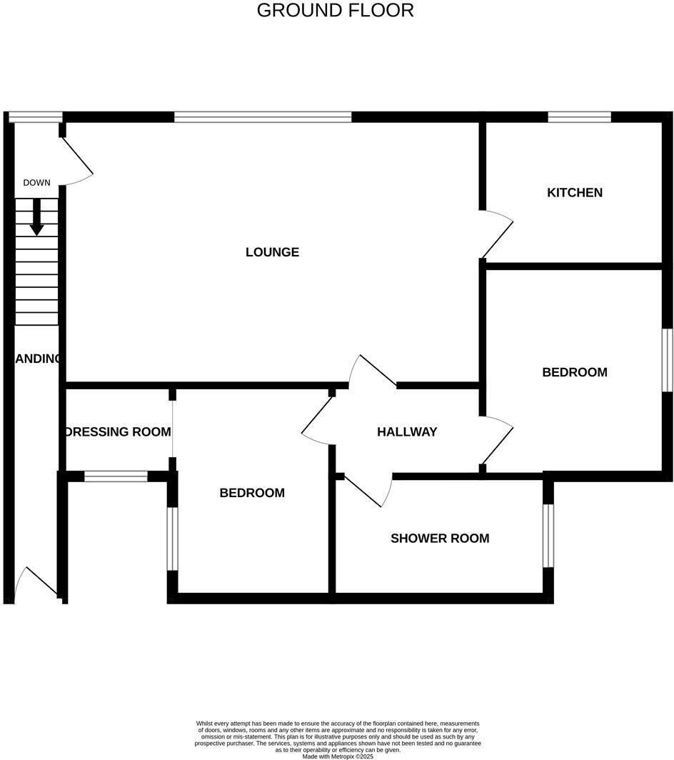
**Standout Features:**
- Two-bedroom first-floor apartment in a retirement complex for the over 55's.
- Spacious lounge with stunning countryside views.
- Fitted wardrobes in both bedrooms; one with a dressing area.
- Well-maintained communal gardens and community room for resident activities.
- Gas central heating and double glazing for comfort and efficiency.
- Chain-free sale, encouraging quick purchase.
- Affordable service and ground rent charges.
**Potential Concerns:**
- Leasehold with 66 years remaining; may pose challenges for mortgage lending.
- Average-sized garden space, lacking further details.
---
Experience serene retirement living in this delightful two-bedroom apartment, perfectly situated in Springfield Park. With stunning views overlooking open countryside, the spacious lounge welcomes you with warmth and comfort, while both bedrooms feature built-in wardrobes, with one room boasting a dressing area for added convenience. The kitchen is functional and well-appointed, ready for your culinary delights.
Residents can enjoy the beautifully maintained communal gardens and a welcoming community room that fosters a vibrant neighborhood atmosphere, complete with regular social events. With gas central heating and double glazing, comfort is ensured year-round. This property is competitively priced and is chain-free, making it an inviting opportunity for buyers seeking a peaceful lifestyle amidst a thriving community. However, note that the leasehold has just 66 years remaining, which may impact financing options. Act quickly to secure your new home in this desirable retirement complex!
2 bedroom retirement property for sale in Briar Lane, Scartho, Grimsby, DN33 — £115,000 • 2 bed • 1 bath • 743 ft²
2 bedroom flat for sale in Briar Lane, Grimsby, Lincolnshire, DN33 — £120,000 • 2 bed • 1 bath • 796 ft²
2 bedroom flat for sale in Briar Lane, , DN33 — £80,500 • 2 bed • 1 bath • 796 ft²
1 bedroom retirement property for sale in Briar Lane, Scartho, Grimsby, DN33 — £109,950 • 1 bed • 1 bath • 775 ft²
1 bedroom apartment for sale in Briar Lane, Grimsby, Lincolnshire, DN33 — £85,000 • 1 bed • 1 bath • 808 ft²
1 bedroom apartment for sale in Briar Lane, Grimsby, Lincoln, Lincolnshire, DN33 3LS, DN33 — £85,000 • 1 bed • 1 bath • 808 ft²






























































