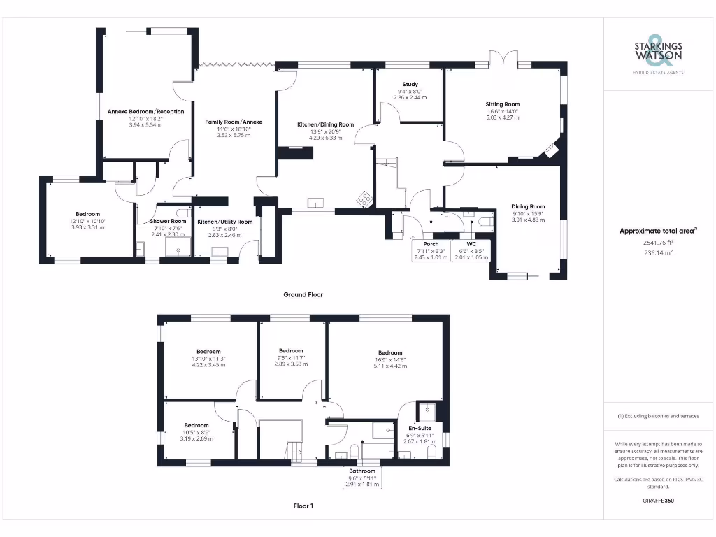
**Standout Features:**
- Detached family home with an annexe
- Over 1 acre of south-facing grounds (stms)
- Two reception rooms plus a study in the main house
- Four bedrooms with an en suite and family bathroom
- Up to two additional bedrooms in the annexe
- Large double garage and ample parking space
- Located in a highly sought-after non-estate setting
**Summary:**
Discover a rare opportunity to own this substantial detached family home, perfectly situated in a serene, tree-lined non-estate setting, just minutes from Norwich City Centre. Spanning over 2,500 sq. ft., this property features a well-designed layout ideal for family living and entertaining. The main house boasts a welcoming entrance hall, two spacious reception rooms, a study, and a large kitchen/dining area drenched in natural light. Upstairs, four generous bedrooms, including a master suite with an en suite, provide comfort and space for families.
The versatile annexe, with its own entrance, accommodates up to two additional bedrooms or can serve as an independent living space, perfect for guests or extended family. Outside, the expansive grounds feature beautifully landscaped gardens with multiple seating areas and a charming woodland walk, perfect for outdoor enthusiasts. Additional highlights include a double garage and ample driveway parking.
While the property is well-maintained and ready for family enjoyment, note that the annexe has a separate council tax bill and the rear section of the roof was recently overhauled and re-roofed in 2023. This unique property combines luxury, space, and potential. Don’t miss out on your chance to own a home in this exclusive location—schedule a viewing today!
5 bedroom detached house for sale in The Street, Poringland, Norwich, NR14 — £585,000 • 5 bed • 3 bath • 2785 ft²
5 bedroom detached house for sale in Church Road, Swainsthorpe, Norwich, NR14 — £650,000 • 5 bed • 3 bath • 2325 ft²
5 bedroom detached house for sale in Grub Street, Shotesham All Saints, Norwich, NR15 — £1,225,000 • 5 bed • 5 bath • 4198 ft²
4 bedroom detached house for sale in Leonard Medler Way, Hevingham, Norwich, NR10 — £575,000 • 4 bed • 2 bath • 1838 ft²
Detached house for sale in Heath Road, Thorpe End, Norwich, Norfolk, NR13 — £650,000 • 1 bed • 1 bath • 2034 ft²
5 bedroom detached house for sale in Revel Burroughs Way, Poringland, Norwich, Norfolk, NR14 — £625,000 • 5 bed • 3 bath • 2018 ft²


































































































































































































