Spacious plot, garage and study ideal for growing families or home workers.
Chain-free and ready to move into
Lightly refurbished: new flooring and new front door
Dual-aspect lounge/diner with separate study/home office
Two double bedrooms with fitted storage
Driveway parking plus 17' garage
Large plot in a comfortable, family-friendly area
Tenure not specified — buyer to verify
Single family bathroom only
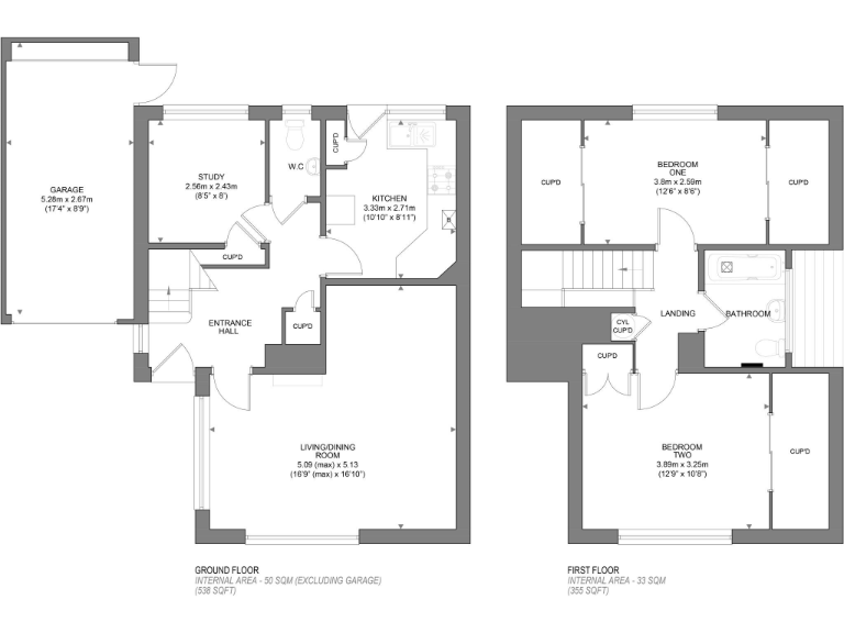
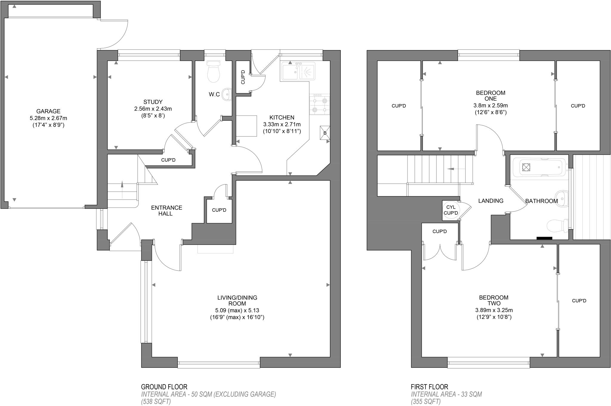
A lightly refurbished two-bedroom detached house on a large plot, offered chain-free and ready to move into. The ground floor layout includes a dual-aspect lounge/diner and a separate study that works well as a home office or playroom. New flooring and a new front door add immediate kerb appeal while gas central heating and double glazing provide practical comfort.
Upstairs are two double bedrooms with fitted storage and a single family bathroom. Outside there is driveway parking for one car and a 17' garage, useful for secure storage or workshop space. The property sits in a comfortable, family-friendly neighbourhood within the catchment of highly regarded local schools, including an Outstanding-rated junior school and Good-rated secondary provision.
Practical buyers should note the tenure is not specified and there is only one bathroom, which may matter for larger households. Built between 1976–1982, the house has been updated but buyers should expect further cosmetic or systems updates over time. Overall this is a sensible family purchase offering generous internal space, off-street parking and scope to personalise.
3 bedroom detached house for sale in Proctor Road, Norwich, Norfolk, NR6 — £315,000 • 3 bed • 1 bath • 924 ft²
5 bedroom detached house for sale in Randall Road, Sprowston, Norwich, NR7 — £475,000 • 5 bed • 3 bath • 1340 ft²
3 bedroom detached house for sale in Windsor Park Gardens, Norwich, Norfolk, NR6 — £315,000 • 3 bed • 2 bath • 1356 ft²
3 bedroom semi-detached house for sale in Edgefield Close, Old Catton, NR6 — £275,000 • 3 bed • 1 bath • 919 ft²
4 bedroom detached house for sale in Bernard Close, Rackheath, Norwich, NR13 — £425,000 • 4 bed • 2 bath • 1625 ft²
3 bedroom detached house for sale in North Walsham Road, Norwich, NR6 — £325,000 • 3 bed • 2 bath


















































