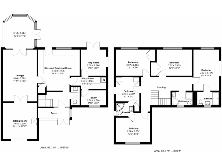
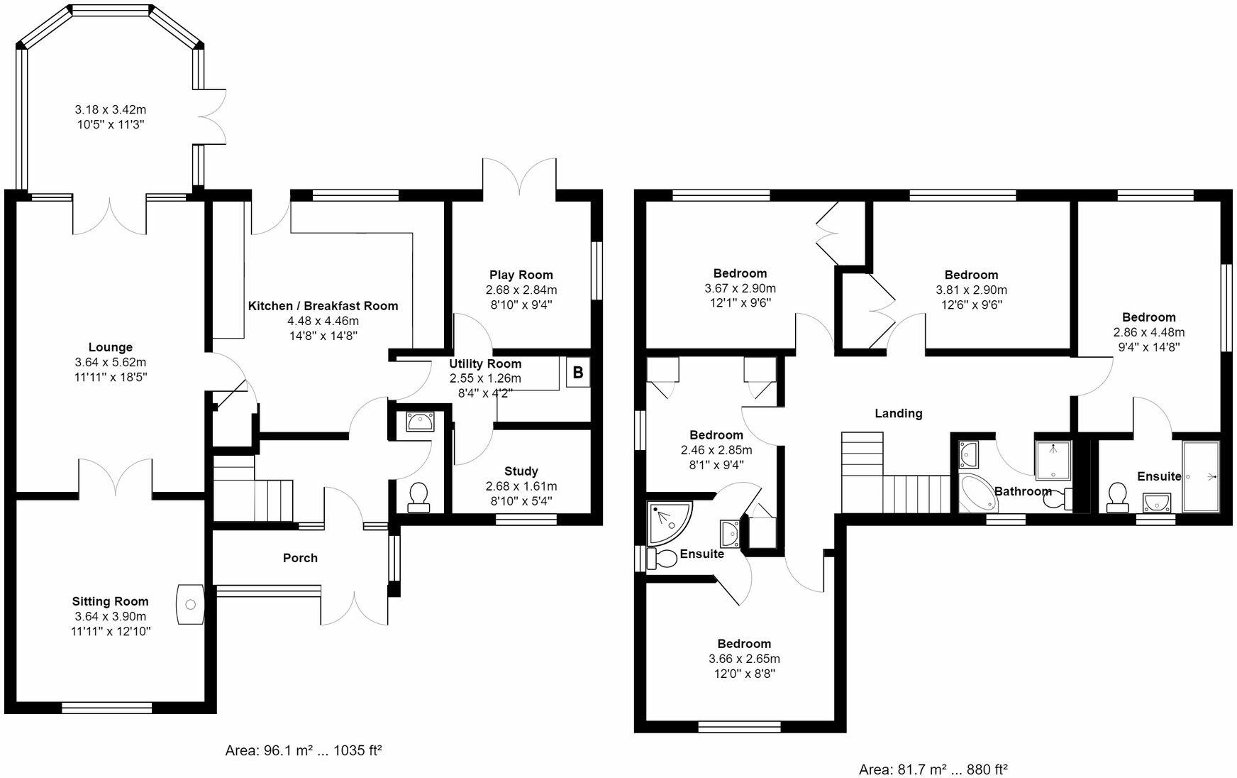
Versatile five-bedroom detached house with south garden and garage, ideal for growing families..
5 double bedrooms including en-suite and Jack-and-Jill bathroom
South-facing, enclosed rear garden with decent plot size
Garage plus driveway parking; fronts onto streamside walk
Multiple reception rooms: lounge, family room, playroom, study
Conservatory, utility room and downstairs cloakroom for practicality
EPC rated D; partial cavity insulation — energy upgrades likely needed
Built 1976–82; some modernisation and survey recommended
Council tax above average for the area
Set back from a popular streamside walk, this spacious five-bedroom detached house offers flexible family living across well-proportioned rooms. The ground floor includes a lounge with woodburner, separate family room, playroom and study — good for home working and children's space. A conservatory, utility and downstairs cloakroom add practical convenience.
Upstairs there are five bedrooms, including an en-suite and a Jack-and-Jill bathroom, plus a family bathroom — suited to a growing family or multi-generation household. The south-facing enclosed rear garden and decent plot provide private outdoor space and scope for gardening or entertaining. Garage and parking complete the practical exterior offering.
Built in the late 1970s/early 1980s with double glazing fitted after 2002, the house is comfortable but not fully modernised. The EPC is rated D and walls have partial cavity insulation; buyers should factor in potential energy-improvement works. Services and measurements have not been tested here, so a pre-purchase survey and service checks are advisable.
Located in a very low-crime, affluent suburb with fast broadband and excellent mobile signal, the property is close to a mix of primary and secondary schools (most rated Good) and local amenities. This home suits families seeking space, strong local community feel and straightforward access to green walking routes, with realistic expectations about updating and energy efficiency improvements.
4 bedroom detached house for sale in Manor Walk, Thornbury, BS35 — £425,000 • 4 bed • 2 bath • 1184 ft²
5 bedroom detached house for sale in Hopkins Close, Thornbury, Bristol, Gloucestershire, BS35 — £565,000 • 5 bed • 2 bath • 2086 ft²
5 bedroom detached house for sale in Red Admiral Way, Thornbury, BS35 — £680,000 • 5 bed • 4 bath • 1776 ft²
4 bedroom detached house for sale in Cleveland Close, Thornbury, BS35 — £525,000 • 4 bed • 1 bath • 1367 ft²
5 bedroom detached house for sale in New Passage Road, Bristol, BS35 — £530,000 • 5 bed • 2 bath • 2125 ft²
5 bedroom detached house for sale in Park Lane, Frampton Cotterell, Bristol, BS36 — £700,000 • 5 bed • 3 bath • 1656 ft²






























































































































