**Standout Features:**
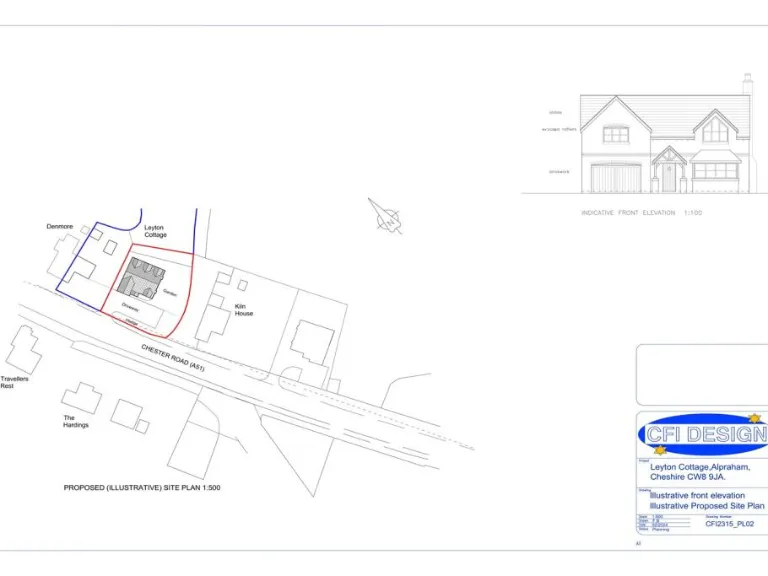
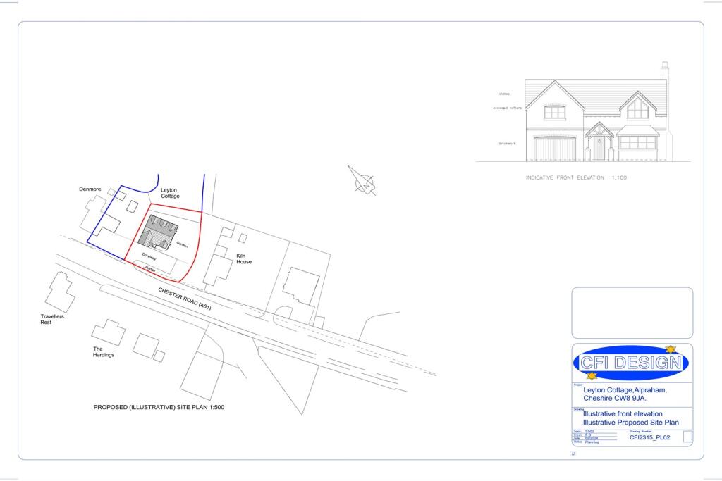
- 3-bedroom extended semi-detached house on a 1.47-acre plot.
- Planning permission granted for a new build (reference 24/0458N).
- Spacious interior (1,724 sq ft) including two reception rooms, a garage, and additional storage.
- Requires refurbishment but boasts character and appealing room sizes.
- Double garage, formal gardens, and a paddock.
- No onward chain and quick legal completion available.
Nestled in the heart of the charming village of Alpraham, this extended 3-bedroom semi-detached house presents a unique opportunity for both ambitious homeowners and developers. Set on a generous 1.47-acre plot, this property features notable planning approval for a new dwelling, adding significant value for potential expansion or investment. The existing structure, while in need of renovation, is characterized by spacious living areas, including two reception rooms and an en suite, offering ample room for customization to suit modern tastes.
Enjoy the tranquillity of rural living while being conveniently close to the amenities of Tarporley and Nantwich, including reputable schools and excellent transport links. This home holds exceptional promise as a personal retreat or a lucrative development project. Don't miss out on this rare gem with no onward chain—your vision awaits!
3 bedroom semi-detached house for sale in Alpraham Green, Alpraham, CW6 — £325,000 • 3 bed • 1 bath • 766 ft²
3 bedroom semi-detached house for sale in Impeccable house with views in Hilbre Bank, CW6 — £359,950 • 3 bed • 1 bath • 1071 ft²
3 bedroom semi-detached house for sale in Calveley Farm Cottages, Long Lane, Calveley, Tarporley, CW6 — £280,000 • 3 bed • 1 bath • 1182 ft²
3 bedroom semi-detached house for sale in Stable Lane, Mouldsworth, Chester, CH3 — £595,000 • 3 bed • 2 bath • 1394 ft²
Land for sale in Crowton, Northwich, CW8 — £325,000 • 3 bed • 2 bath • 1720 ft²
2 bedroom semi-detached house for sale in Birch Heath Road, Tarporley, CW6 — £320,000 • 2 bed • 1 bath • 965 ft²






















































































































