**Standout Features:**
- Semi-detached freehold property
- Two spacious bedrooms and a large bathroom
- Two reception rooms, including a charming conservatory
- Kitchen/diner perfect for family gatherings
- Landscaped terraced garden with stunning hillside views
- Driveway parking for convenience
- Affordable Council Tax Band B
- Chain-free sale for a smooth transaction
**Potential Considerations:**
- Double glazing installed pre-2002 may require updating
- Cavity walls lack insulation, which could be improved for energy efficiency
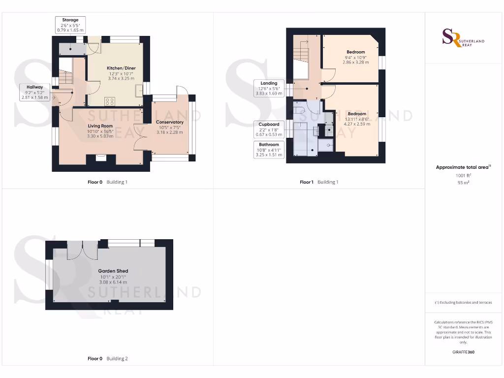
Discover your dream home in this charming 2-bedroom semi-detached house, steeped in early 20th-century character. This inviting property features a light-filled layout with two well-proportioned bedrooms, a spacious bathroom, and both a cozy living room and a delightful conservatory that opens directly to the beautifully landscaped garden. Enjoy al fresco dining or quiet moments on the stone patio while soaking in the gorgeous hillside views.
Perfectly situated in a tranquil rural setting yet close to local amenities, including schools with excellent Ofsted ratings, this home is ideal for families and first-time buyers alike. With off-street driveway parking and a peaceful terraced garden that beckons for outdoor enjoyment, this property promises comfort and convenience. While the EPC rating is D, there is ample potential for renovation to enhance energy efficiency. Don't miss the chance to own this gem—properties like this don’t stay on the market for long!
2 bedroom semi-detached house for sale in Harris Road, Buxton, SK17 — £209,950 • 2 bed • 1 bath • 894 ft²
2 bedroom semi-detached house for sale in The Woodfield, Buxton, Derbyshire, SK17 — £230,000 • 2 bed • 2 bath • 716 ft²
3 bedroom semi-detached house for sale in Ferneydale Avenue, Buxton, SK17 — £240,000 • 3 bed • 2 bath • 1234 ft²
2 bedroom semi-detached house for sale in Sherwood Road, Buxton, SK17 — £225,000 • 2 bed • 1 bath • 718 ft²
3 bedroom semi-detached house for sale in Riverside Court, Buxton, SK17 — £385,000 • 3 bed • 2 bath • 1131 ft²
2 bedroom semi-detached house for sale in Tongue Lane, Buxton, SK17 — £179,000 • 2 bed • 1 bath • 679 ft²






















































































