Generous three-bedroom apartment with private garden and long lease near Peckham Rye.
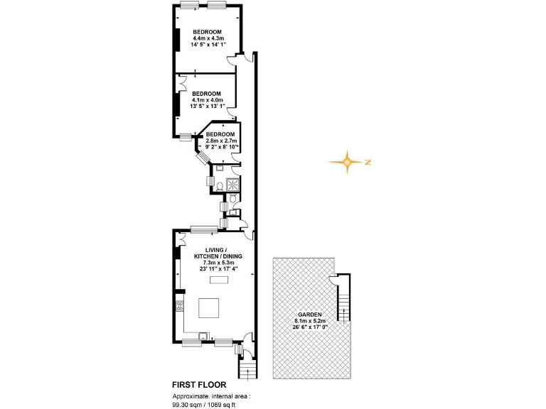
Large 400 sq ft open-plan reception and kitchen area
Set across the first floor of a handsome Victorian terrace, this generous three-bedroom flat combines original period detail with a contemporary, open-plan layout. The principal living space is expansive — around 400 sq ft — with dual aspect sash windows, a feature fireplace and a well-equipped modern kitchen with a large island. Twin rear doors lead to external steps down to a private rear garden, ideal for dining and play.
Three bedrooms include two large doubles retaining period fireplaces and a smaller third bedroom currently used as a study. The flat benefits from a modern shower room plus a separate WC, timber-effect floors and crisp neutral finishes throughout. Practical points include a very long lease of 947 years, a small annual ground rent of £25 and share of freehold ownership.
This property will suit families wanting space and outdoor access in SE15, with easy walking access to Bellenden Village, Peckham Rye station and local parks. Note the building sits in an area with above-average crime statistics and wider local deprivation indicators; prospective buyers should factor this into location choice and security considerations.
Overall the flat offers roomy, well-proportioned accommodation, a private garden and long-term tenure security — but buyers should expect inner‑city living realities and confirm specifics on condition and costs at inspection.
3 bedroom flat for sale in Shenley Road, London, SE5 — £625,000 • 3 bed • 2 bath • 934 ft²
3 bedroom flat for sale in Nutbrook Street, Peckham Rye, SE15 — £800,000 • 3 bed • 1 bath • 955 ft²
2 bedroom flat for sale in Denman Road, Peckham, SE15 — £775,000 • 2 bed • 2 bath • 1009 ft²
5 bedroom terraced house for sale in Denman Road, Peckham, SE15 — £1,100,000 • 5 bed • 2 bath • 1905 ft²
3 bedroom flat for sale in Kings Grove, Peckham, SE15 — £835,000 • 3 bed • 1 bath • 1132 ft²
3 bedroom terraced house for sale in Bellenden Road, London, SE15 — £1,100,000 • 3 bed • 1 bath • 1216 ft²














































































































