Two-bedroom tenanted terrace with strong immediate yield for investor buyers.
Tenanted buy-to-let producing £7,800pa; tenants wish to remain
Asking price £75,000 — high gross yield opportunity (~10.4% gross)
Victorian end-terrace with small rear garden and traditional layout
External wear: peeling plaster, older roof tiles; renovation likely required
On-street parking only; small plot size
Area shows higher crime and local deprivation — impacts growth/risk
Fast broadband and excellent mobile signal; easy access to amenities
Buyers Premium applies on purchase; see Let Property Pack for details
This two-bedroom end-of-terrace on Carr Lane is offered primarily as a buy-to-let opportunity. It produces an annual gross income of £7,800 (tenant in situ) and could be increased marginally to £7,836; at the asking price of £75,000 this represents a high gross yield for investors seeking immediate income.
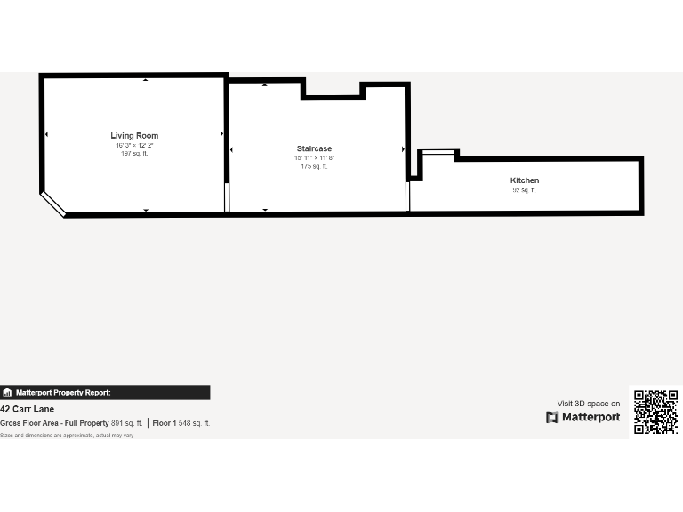
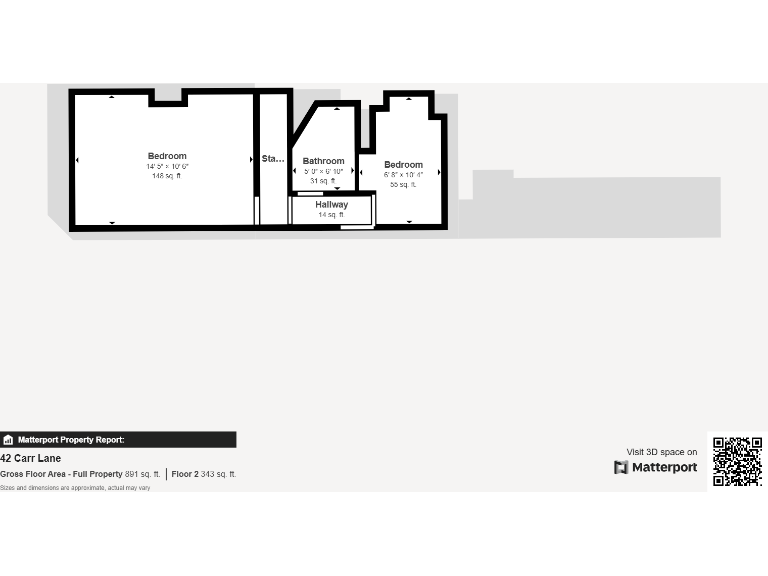
The house is a traditional Victorian terrace with period brickwork and a small rear garden. The property shows external wear — peeling render, older roof tiles and external plasterwork — indicating likely short-to-medium term maintenance or refurbishment will be needed. Internally the layout is traditional and practical, with lounge, kitchen, two bedrooms and a three-piece bathroom across approximately 872 sq ft.
Tenants have lived in the property for several years and intend to remain, so the sale will suit buyers wanting steady rental return without voids. The location offers easy access to local amenities and fast broadband/mobile signal, but the area has higher crime rates and local deprivation, which will affect tenant mix and long-term capital growth prospects.
Serious investors and developers should factor in immediate maintenance costs, on-street parking only, and the Buyers Premium that applies on purchase. For those seeking a hands-off rental with an established tenancy and strong gross yield, this presents a clear short-term income play; buyers aiming for long-term uplift should allow budget for renovation and be comfortable with the local market’s challenges.
2 bedroom terraced house for sale in Carleton View, Pontefract, WF8 — £97,500 • 2 bed • 1 bath • 552 ft²
2 bedroom flat for sale in Ebberton Close, Pontefract, WF9 — £90,000 • 2 bed • 2 bath • 581 ft²
2 bedroom terraced house for sale in Shelley Drive, Knottingley, West Yorkshire, WF11 — £100,000 • 2 bed • 1 bath • 850 ft²
3 bedroom terraced house for sale in Victoria Street, Pontefract, WF9 — £117,000 • 3 bed • 1 bath • 1109 ft²
2 bedroom flat for sale in Castle Mews, Pontefract, WF8 — £83,000 • 2 bed • 1 bath • 635 ft²
2 bedroom terraced house for sale in Racecommon Road, Barnsley, S70 — £100,000 • 2 bed • 1 bath • 936 ft²






































































