Ready-planned stables and ménage near the Lincolnshire coast for investor or operator.
- Approximately 10 acres (4 hectares) of rectangular, hedged grassland
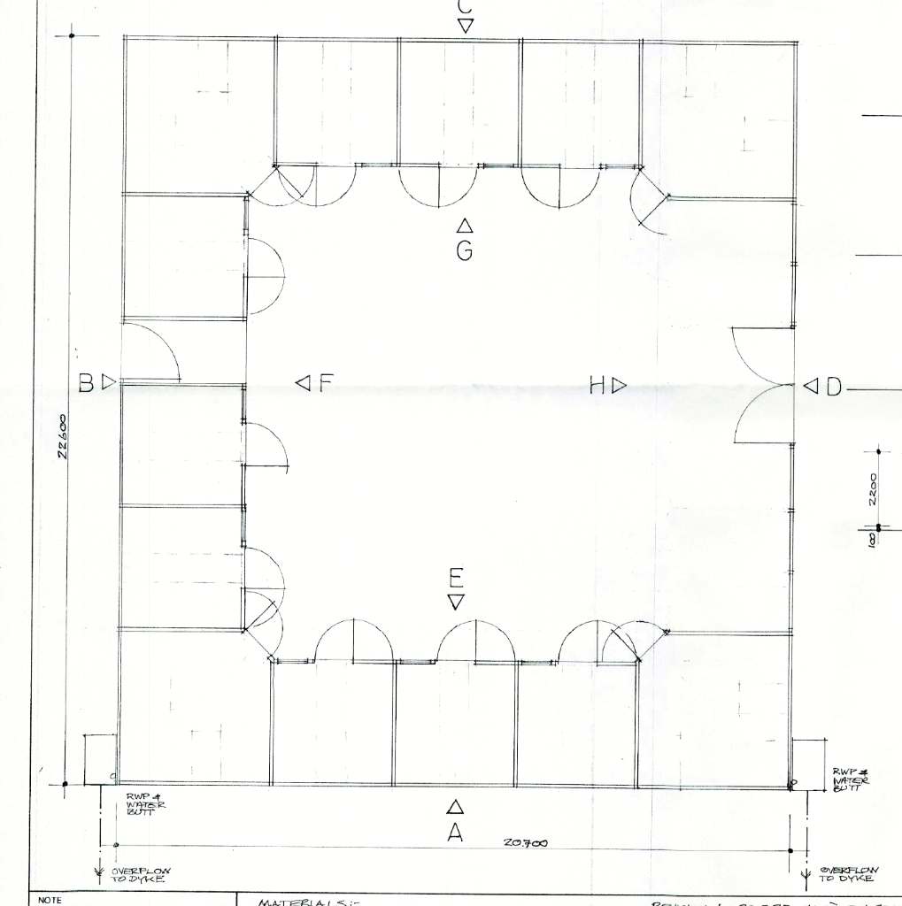
- Full planning consent for 13 stables and 60m x 40m ménage (N/110/00232/22)
- About 2 miles from the coast at Sutton on Sea
- Central road entrance; site visible from roadside for ease of inspection
- Flood risk recorded as low; mobile signal excellent
- Tenure unspecified — buyer to confirm legal title and access rights
- Very slow broadband and located in a very deprived local area
- Viewings unaccompanied at owner's risk; PPE required for onsite access
A rare 10-acre parcel on Alford Road, offered with full planning consent for 13 stables arranged around a central courtyard and a 60m x 40m ménage. The rectangular, hedged field is level and presently grassed, providing a clear and cost-efficient canvas for equestrian development or smallholding use. Its coastal setting, approximately two miles from Sutton on Sea, adds leisure appeal for riding and potential holiday/equestrian-let opportunities.
Planning permission N/110/00232/22 (April 2022) is in place, so much of the initial consenting work is complete; approved plans accompany the particulars. Access is from a central road entrance off Alford Road, and the site is visible from the roadside. Interested parties may view the land unaccompanied at their own risk and should wear appropriate PPE.
Practical considerations: the land sits in a very deprived local area with very slow broadband, which may affect some business models and onsite connectivity. Tenure details are not specified in the particulars, and buyers should confirm any legal or title matters before exchange. Flooding risk is recorded as low, and mobile signal is excellent.
This holding will suit buyers seeking an established planning consent and large, flexible acreage close to the coast — investors or equestrian operators who can capitalise on the approved scheme and rural location. The site’s scale also offers scope for alternative agricultural or leisure uses, subject to planning and due diligence.
Land for sale in Ings Lane, Saltfleetby, Louth, Lincolnshire, LN11 7ST, LN11 — £50,000 • 1 bed • 1 bath
Land for sale in Rossa Lane, Trusthorpe, Mablethorpe, LN12 — £125,000 • 1 bed • 1 bath
Land for sale in Huttoft Road, Sutton-On-Sea, Mablethorpe, LN12 — £325,000 • 1 bed • 1 bath
Leisure facility for sale in Crabtree Lane, Sutton-on-Sea, Mablethorpe, Lincolnshire, LN12 — £775,000 • 1 bed • 1 bath • 6000 ft²
Land for sale in Trusthrope Road, Sutton on Sea, LN12 — £1,150,000 • 4 bed • 1 bath • 2090 ft²
Chalet for sale in Roman Bank, Sandilands, Mablethorpe, LN12 — £88,000 • 1 bed • 1 bath






































