**Standout Features:**
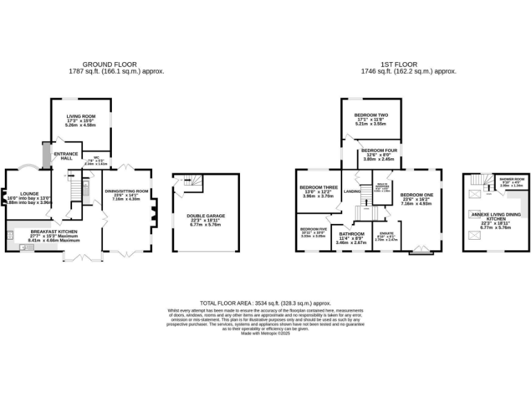
- Spacious 6-bedroom detached home with a 1-bedroom annex
- Wrapping garden with mature trees and landscaping
- Multiple reception areas and an expansive breakfast kitchen
- Secure access via electric gates and ample off-road parking
- Close to amenities, schools, and great transport links
**Notable Aspects:**
- Situated in a private setting with a blend of modern design and traditional charm
- Outdoor space ideal for families and entertaining
- Council Tax Band E, indicating higher local taxes
Discover this exquisite 6-bedroom detached family home on Swanlow Lane, offering a remarkable one-bedroom fully fitted annex—perfect for guests or rental potential. This property presents a blend of comfort and style with multiple reception rooms, providing ample space for family gatherings. The spacious breakfast kitchen is flooded with light and connects seamlessly to a beautifully maintained garden, featuring a patio that’s perfect for outdoor entertaining.
Nestled within a peaceful and private setting, this home is conveniently located near a variety of local amenities, excellent schools, and fantastic transport links, making it ideal for families or first-time buyers. Experience the luxury of off-road parking for several vehicles, complemented by secure electric gates for peace of mind. With the picturesque open spaces nearby, this property offers a unique opportunity for upscale suburban living.
Don’t miss your chance to own this beautiful residence—properties like this are highly sought after and may not be on the market for long.
5 bedroom detached house for sale in Luxurious 5 Bedroom Detached Home with Separate Annex, CW7 — £600,000 • 5 bed • 2 bath • 2251 ft²
4 bedroom detached house for sale in Swanlow Avenue, Winsford, CW7 — £425,000 • 4 bed • 2 bath • 1314 ft²
5 bedroom semi-detached house for sale in Swanlow Lane, Winsford, CW7 — £350,000 • 5 bed • 2 bath • 1551 ft²
3 bedroom house for sale in Swanlow Lane, Winsford, CW7 — £350,000 • 3 bed • 2 bath • 1281 ft²
5 bedroom detached house for sale in Swanlow Lane, Winsford, Cheshire, CW7 — £425,000 • 5 bed • 4 bath • 2203 ft²
4 bedroom detached house for sale in Swanlow Lane, Winsford, CW7 — £550,000 • 4 bed • 2 bath • 3519 ft²














































































































































































































































































































