Spacious SW5 apartment ideal for first-time buyers seeking central transport links.
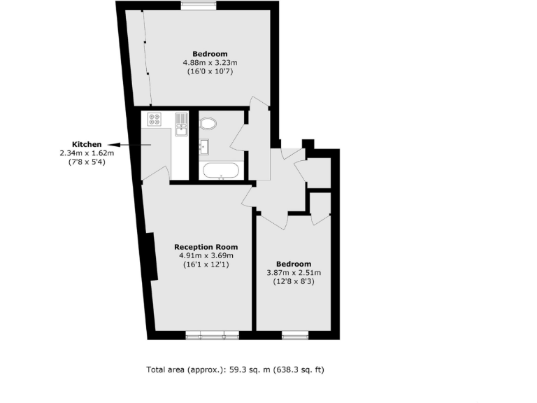
Second-floor two-bedroom conversion, approx. 638 sq ft
Short walk to Earl's Court Tube and local amenities
Open-plan reception/dining with abundant natural light
Main bedroom generously proportioned, good ceiling height
Leasehold tenure — confirm term and service charges
No private garden or outdoor space
Solid brick Victorian build; likely no wall insulation
Double glazing present; install date unknown
Bright two-bedroom apartment on the second floor of a converted Victorian terrace, minutes from Earl’s Court Tube. The open-plan reception and large main bedroom give the flat a spacious, contemporary feel with plenty of natural light. At about 638 sq ft, the layout suits a couple or first-time buyer seeking a centrally located SW5 home with easy transport links.
Highlights include a generous reception/dining space, a well-proportioned principal bedroom and contemporary bathroom fittings. The property benefits from double glazing (install date unknown), mains gas central heating via boiler and radiators, and on-street residential parking. Local amenities on Old Brompton Road and nearby schools add everyday convenience and long-term resale appeal.
Buyers should note this is a leasehold conversion (confirm remaining term and charges). The building is a pre-1900 solid brick construction with no assumed wall insulation, so heating costs and possible upgrading should be considered. There is no private outdoor space, and room sizes are typical for a conversion; prospective purchasers should check exact measurements and communal maintenance responsibilities before buying.
2 bedroom flat for sale in Eardley Crescent, Earls Court, SW5 — £525,000 • 2 bed • 1 bath • 623 ft²
2 bedroom flat for sale in Eardley Crescent, Earls Court, SW5 — £650,000 • 2 bed • 1 bath • 627 ft²
1 bedroom flat for sale in Eardley Crescent, London, SW5 — £525,000 • 1 bed • 1 bath • 538 ft²
2 bedroom flat for sale in Eardley Crescent, Earls Court, London, SW5 — £650,000 • 2 bed • 1 bath • 651 ft²
1 bedroom flat for sale in Eardley Crescent, Earl's Court, SW5 — £695,000 • 1 bed • 1 bath • 614 ft²
2 bedroom apartment for sale in Eardley Crescent, London, SW5 — £725,000 • 2 bed • 1 bath • 616 ft²






















