Short walk to trains, good schools and maintained parkland nearby.
Chain-free four-bedroom family home across three floors
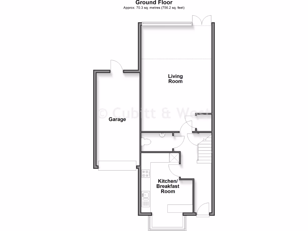
A well-presented four-bedroom family home on the sought-after Park 25 development, offered chain-free and ready for immediate occupation. Spread across three floors, the layout includes a generous living/dining room with garden access, a bright kitchen/breakfast room and a versatile loft room suitable for a home office or playspace. An integral garage with internal access and driveway parking add practical convenience for families.
Location is a key strength: it is a short walk from Redhill train station and High Street, with maintained communal grounds and a private residential park on the development. The property sits in good school catchments, including nearby primary and secondary schools rated Good and Outstanding, making it well-suited to families with children.
Constructed post-2007 with modern double glazing and gas central heating, the house requires minimal immediate work and offers sensible scope for cosmetic updating or personalisation. The plot is modest in size and the garden is practical rather than expansive — something to consider if outdoor space is a priority. All measurements and services should be independently verified by buyers.
Overall this is a convenient, contemporary family home in a very affluent area with fast broadband and excellent mobile signal. Its no-onward-chain status, commuter-friendly location and flexible accommodation will appeal to families and buyers seeking straightforward move-in options, though purchasers wanting large private grounds may find the plot limited.
4 bedroom semi-detached house for sale in Parritt Road, Redhill, Surrey, RH1 — £540,000 • 4 bed • 1 bath • 1302 ft²
4 bedroom semi-detached house for sale in Parritt Road, Redhill, Surrey, RH1 — £500,000 • 4 bed • 3 bath • 956 ft²
4 bedroom town house for sale in Burrage Road, Redhill, Surrey, RH1 — £515,000 • 4 bed • 3 bath • 1411 ft²
4 bedroom semi-detached house for sale in Burrage Road, Redhill, RH1 — £535,000 • 4 bed • 3 bath • 1452 ft²
3 bedroom town house for sale in St. Anne's Drive North, Redhill, Surrey, RH1 — £480,000 • 3 bed • 3 bath • 985 ft²
4 bedroom semi-detached house for sale in Somerset Gardens, Meadvale, Surrey, RH1 — £695,000 • 4 bed • 2 bath • 2379 ft²


























































































