Affordable two-bed flat with long lease, balcony and handy storage — ideal first-time buy.
Long lease: 103 years remaining
Private balcony and outside storage shed for bikes
16' sitting/dining room — good natural light
Two double bedrooms with built-in storage
Service charge c.£176 pcm; ground rent £10 pa
Heating via community scheme — check running costs
Located in a very deprived area; above-average crime
Third-floor access via communal stairs (no lift noted)
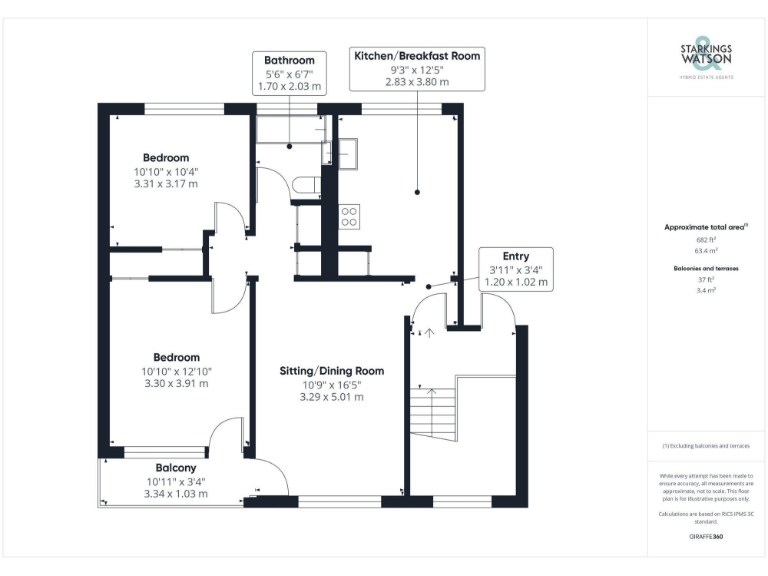
This third-floor, two-bedroom flat on Lefroy Road offers a practical, affordable entry into Norwich property ownership. With 103 years remaining on the lease, a private balcony, and outside storage shed, the home suits first-time buyers looking for straightforward living close to local shops and bus links.
Internally the apartment feels roomy for its size: a 16' sitting/dining room, fitted kitchen with space for appliances, two double bedrooms with built-in storage, and a three-piece bathroom with shower over bath. Wood-laminate and carpeted floors make maintenance simple, and large uPVC windows bring good daylight into the main living space.
Be clear about the trade-offs. The block dates from the late 1960s/early 1970s and while the kitchen appears modern, the glazing predates 2002 and heating runs via a community scheme — prospective buyers should check running costs. Service charges are approximately £176 pcm and ground rent is £10 pa. The property sits in a very deprived area with above-average crime statistics, and access is via communal stairway to the third floor (no lift is provided in the description).
For buyers searching for an affordable flat with long lease security and simple outdoor space, this property is a sensible, practical purchase. It will particularly suit those prepared to accept communal service costs and the local area profile in exchange for value and proximity to amenities and public transport.
2 bedroom apartment for sale in Lefroy Road, Norwich, NR3 — £120,000 • 2 bed • 1 bath • 557 ft²
2 bedroom apartment for sale in Colls Road, Norwich, Norfolk, NR7 — £140,000 • 2 bed • 1 bath • 602 ft²
2 bedroom flat for sale in Ives Road, Norwich, NR6 — £140,000 • 2 bed • 1 bath • 657 ft²
2 bedroom flat for sale in Lavengro Road, NR3 — £150,000 • 2 bed • 1 bath • 599 ft²
2 bedroom flat for sale in Springbank, Norwich, NR1 — £135,000 • 2 bed • 1 bath • 598 ft²
2 bedroom flat for sale in Lefroy Road, Norwich, NR3 — £120,000 • 2 bed • 1 bath • 533 ft²


















































































