**Standout Features:**
- Spacious 3-bedroom Victorian end-of-terrace home
- Large detached double garage and off-street parking available
- Two sizable cellar chambers with potential for future integration
- Central location near amenities and Manor Park
- Enclosed rear garden and pleasant forecourt garden
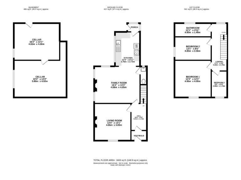
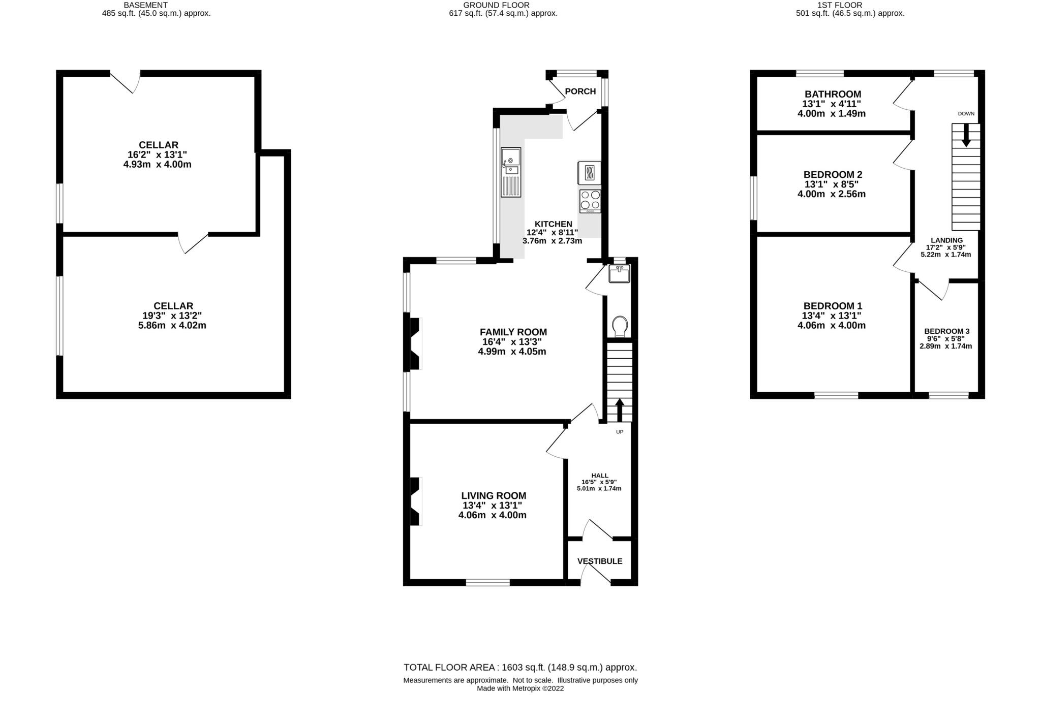
Nestled in a comfortable neighborhood within SK13, this charming Victorian end-of-terrace property offers an impressive 1,603 sq ft of living space. Designed for families or investors, it features three well-proportioned bedrooms and a thoughtfully designed bathroom. The large front-facing bedroom can accommodate ample furniture, while the versatile third bedroom is ideal for a study or nursery.
You’ll appreciate the historic charm melded with modern potential, highlighted by two large cellar chambers primed for renovation. The extensive exterior includes a gated driveway, a spacious double garage with light and power, ample off-road parking, and an inviting forecourt garden.
Though the property is in decent condition, some updating may be needed to fit your personal taste. With school choices nearby, significant storage options, and local amenities just a stroll away, this property embodies both convenience and possibility. Don't miss your chance to make this unique home your own—arrange a viewing today!
5 bedroom end of terrace house for sale in Sheffield Road, Glossop, SK13 — £595,000 • 5 bed • 3 bath • 3110 ft²
4 bedroom semi-detached house for sale in Sheffield Road, Glossop, Derbyshire, SK13 — £575,000 • 4 bed • 2 bath • 2500 ft²
3 bedroom semi-detached house for sale in Stockport Road, Gee Cross, SK14 — £325,000 • 3 bed • 3 bath • 2076 ft²
3 bedroom end of terrace house for sale in Hollincross Lane, Glossop, SK13 — £264,500 • 3 bed • 1 bath • 958 ft²
2 bedroom terraced house for sale in Silk Street, Glossop, Derbyshire, SK13 — £205,000 • 2 bed • 1 bath • 954 ft²
4 bedroom terraced house for sale in Glossop Road, Gamesley, Glossop, Derbyshire, SK13 — £296,000 • 4 bed • 1 bath • 1699 ft²


































































