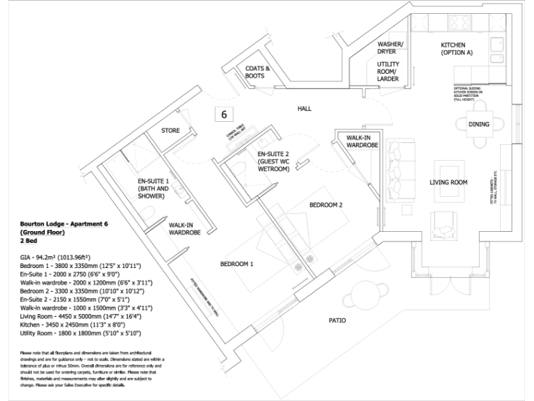
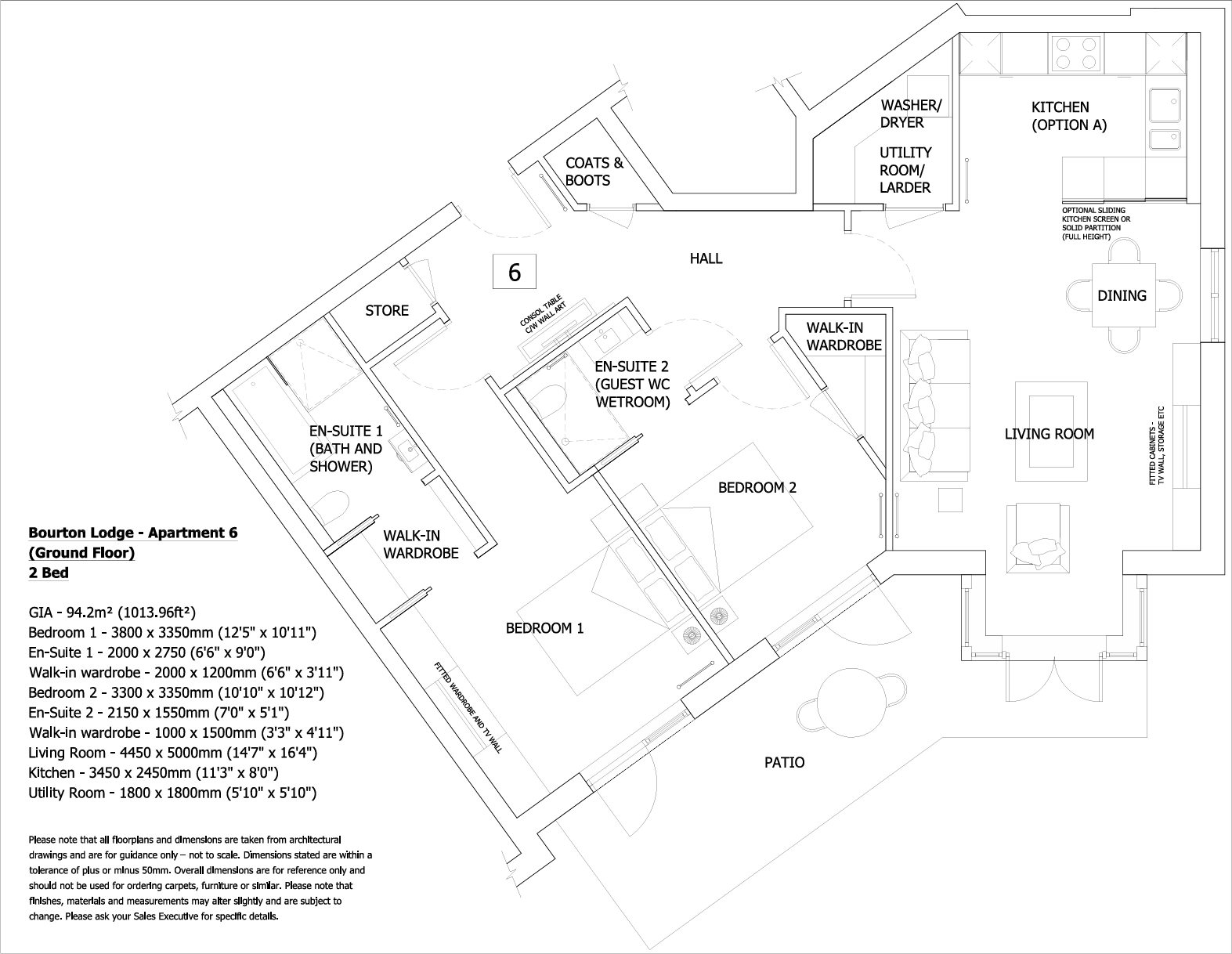
**Standout Features:**
- Ground floor, 2-bedroom, 2-bathroom apartment in an exclusive over-65s development
- Newly renovated, pristine condition throughout
- Spacious open plan living/kitchen/dining area with high-spec fitted kitchen
- Private south-facing terrace with views of landscaped communal grounds
- Extensive communal amenities including residents' lounge, dining room, and cinema room
- Secure underground parking available
**Concise Summary:**
Welcome to Stratton Court, an esteemed over-65s community offering a beautifully renovated 2-bedroom apartment that stands out as one of the largest in the development. This ground-floor gem features an open plan living space that seamlessly connects to a private south-facing terrace, perfect for enjoying sunny afternoons. Equipped with two modern bathrooms boasting easy-access walk-in showers, and a high-spec kitchen that gleams with built-in appliances, this home provides both convenience and style.
Residents benefit from a vibrant community atmosphere and access to exceptional communal facilities, including a cozy lounge, dining room for meals with neighbors, and a cinema for entertainment. The secure environment and additional amenities, such as underground parking, enhance this property’s appeal, making it a perfect sanctuary for retirees seeking companionship and support. With low crime rates and an affluent neighborhood, this apartment is an ideal choice for those looking for comfort and security. Don't miss your chance to join this welcoming community; this exclusive opportunity won't last long!



























































































































