Chain-free 3-bed home backing onto woodland, with planning to extend to four..
Edge-of-village plot backing onto woodland
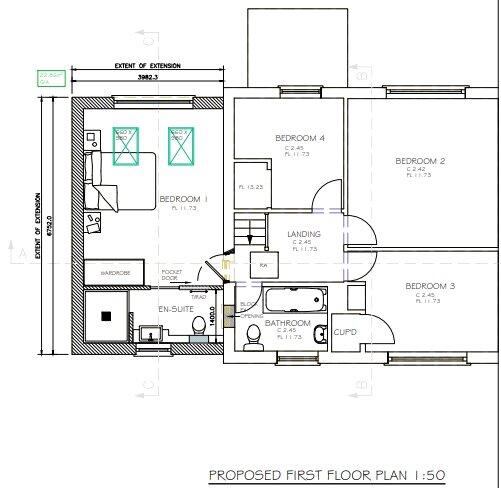
Planning permission granted for first-floor extension to add master ensuite
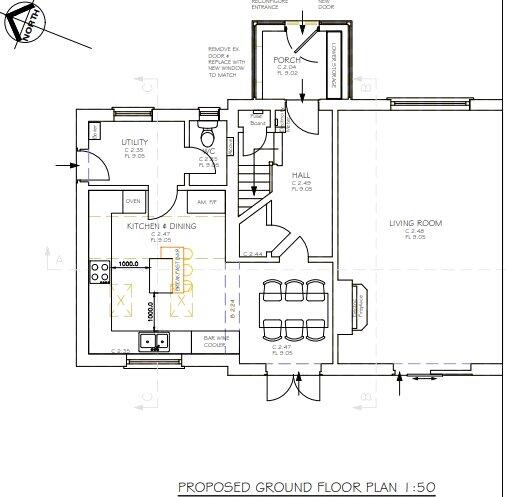
Double-aspect sitting room with wood burner and garden access
Vaulted kitchen/dining room opening onto patio and lawn
Brick-paved driveway; single garage located in nearby block
Large plot with mature trees; shed and hardstanding for studio
Heating by LPG boiler (no mains gas); consider ongoing fuel costs
Very slow broadband; council tax above average
This bright, well-presented three-bedroom semi-detached house sits on the edge of Fernhurst backing directly onto woodland, offering privacy and a strong sense of outdoors living. The ground floor features a double-aspect sitting room with a wood burner and doors to a full-width patio, plus a vaulted kitchen/dining room that opens onto the garden — ideal for family life and entertaining. A utility room and cloakroom add practical convenience.
Planning permission has been granted to extend over the landing to create a fourth bedroom with an ensuite, providing clear scope to increase living space and value. The property is offered chain free and includes a brick-paved driveway, a single garage in a nearby block, and a gate from the garden into the adjoining woodland. The home is in a peaceful private road within the South Downs National Park and sits on a large plot with mature trees and outbuilding/hardstanding suitable for a summerhouse or studio.
Buyers should note a few material points: heating is by LPG boiler and radiators (not a mains gas supply), broadband speeds are very slow, and council tax is above average. Overall this is a comfortable, traditional family home with immediate usability and straightforward potential to enlarge and modernise further.
3 bedroom semi-detached house for sale in Homelands Copse, Fernhurst, Haslemere, Surrey, GU27 — £645,000 • 3 bed • 1 bath
3 bedroom link detached house for sale in Grailands Close, Fernhurst, GU27 — £600,000 • 3 bed • 1 bath • 1377 ft²
4 bedroom semi-detached house for sale in West Close, Fernhurst, Haslemere, West Sussex, GU27 — £570,000 • 4 bed • 2 bath • 320 ft²
4 bedroom semi-detached house for sale in Midhurst Road, HASLEMERE, Surrey, GU27 — £750,000 • 4 bed • 3 bath • 2266 ft²
3 bedroom detached house for sale in Hilland Rise, Headley, Hampshire, GU35 — £675,000 • 3 bed • 1 bath • 1443 ft²
4 bedroom end of terrace house for sale in The Cylinders, Fernhurst, Haslemere, Surrey, GU27 — £580,000 • 4 bed • 1 bath • 1340 ft²










































































