Chain-free, characterful one-bed flat near Blackhorse Road Station — ideal first home or investment.
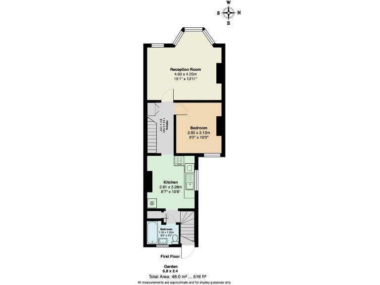
Chain free one-bedroom flat on first floor with bay-windowed reception
Long lease (137 years) — leasehold tenure
Shared rear garden approx. 22' x 7'10"; limited private outdoor space
Solid brick Victorian build; likely no cavity insulation
Medium flood risk — check insurance and flood guidance
Area records higher crime levels; consider security measures
516 sq ft total — compact, efficient layout suitable for one or two
Excellent mobile signal and fast broadband; cheap council tax
Set on the first floor of a handsome Victorian conversion, this one-bedroom flat offers a compact, well-laid-out home with immediate access to Blackhorse Road Station and local amenities. The reception room features a large bay window that brings in afternoon light, while built-in storage and a practical kitchen/diner make efficient use of the 516 sq ft footprint. The property is chain free and sits on a long lease (137 years), easing the path to purchase.
The flat is best for a first-time buyer or investor seeking a low-maintenance city base close to transport and green space. Walthamstow Wetlands, independent cafés, and the town centre are all within easy reach. Fast broadband and excellent mobile signal support home working; council tax is described as cheap.
Buyers should note material considerations: the building has solid brick walls with no assumed cavity insulation, so energy efficiency and heating costs may be higher than modern builds. The area records higher-than-average crime and the property sits in a medium flood-risk zone — both are important for insurance and personal security planning. The shared rear garden is modest (approx. 22' x 7'10") and requires communal upkeep.
Overall, this is a characterful period conversion that delivers convenience and charm in a popular part of Walthamstow. It presents clear potential for cosmetic updating and energy improvements, making it a sensible purchase for someone wanting a well-connected starter home or a rental asset with straightforward management.
1 bedroom flat for sale in Cornwallis Road, Walthamstow, London, E17 — £375,000 • 1 bed • 1 bath • 485 ft²
1 bedroom flat for sale in Edward Road, Walthamstow, London, E17 — £425,000 • 1 bed • 1 bath • 519 ft²
1 bedroom flat for sale in Blackhorse Lane, London, E17 — £400,000 • 1 bed • 1 bath • 495 ft²
1 bedroom flat for sale in Diana Road, Walthamstow, London, E17 — £400,000 • 1 bed • 1 bath • 626 ft²
2 bedroom flat for sale in Forest Road, Walthamstow, E17 — £425,000 • 2 bed • 1 bath • 818 ft²
1 bedroom flat for sale in Carr Road, Walthamstow, E17 — £400,000 • 1 bed • 1 bath • 479 ft²


















































